Description
SOUS OPTION - SOUS OPTION - SOUS OPTION - SOUS OPTION - SOUS OPTION - SOUS OPTION - Magnifique habitation trois façades entièrement rénovée avec des matériaux de hautes qualités. Elle vous charmera par son atmosphère chaleureuse et sa situation unique proche de toutes commodités. Elle se compose, au rez-de-chaussée, d'un agréable séjour avec cuisine américaine ouverte donnant sur une vaste terrasse aménagée parfaitement orientée vous procurant une superbe luminosité. Le premier étage vous propose deux chambres et une salle de douche. Vous bénéficierez d'une troisième chambre au dernier étage ainsi qu'un espace grenier. Ce bien vous propose également un garage ainsi qu'une remise. Possibilité de frais réduits.
Général
- Type de bien : Maison
- Condition : remis à neuf
- Disponibilité : à l'acte
- Jardin :
- Façade(s) : 3
Aspects financiers
- Revenu cadastral (€) : 358 €
Intérieur
- Cuisine : Oui
- Buanderie : 10 m²
- Nbre de toilette(s) : 2
- Nombre de sdd : 1
- Bureau : 13 m²
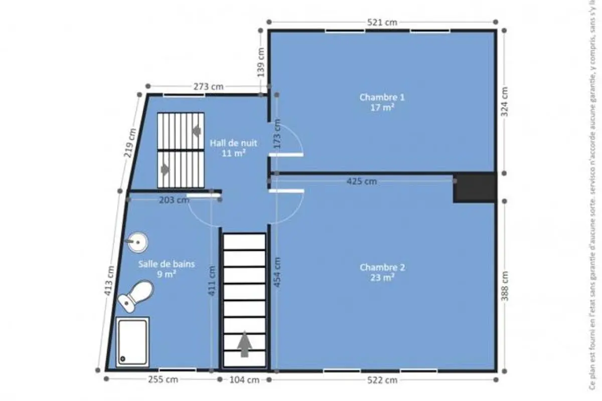
- Chambre 1 : 17 m²
- Chambre 2 : 23 m²
- Chambre 3 : 31 m²
- Ascenseur : Non
- Double vitrage : Oui
- égouts : Oui
- électricité : Oui
- Nbre de terrasse(s) : 1
- Salle de séjour : 41 m²
- Cuisine : 23 m²
- Chauffage : mazout (chauf. centr.)
- Orientation de la terrasse 1 : sud-est
- Type de cuisine : amer. super-équipée
- Alarme : Oui
- Télévision par cable : Oui
- Gaz : Oui
- Câbles téléphoniques : Oui
- Eau : Oui
- Grenier : Oui
- Détecteur incendie : Oui
Extérieur
- Nombre d'étages : 2
- Nombre de garage : 1
- Année de rénovation : 2000
- Châssis : aluminium
- Surface de terrasse 1 : 94 m²
- Type de toit : en pente
Terrain et environs
- Type d'environnement : campagne
- Magasins : Oui
- Ecoles : Oui
- Transports en commun : Oui
- Centre sportif : Oui
- Autoroute : Oui
- Gare : Oui
- Orientation de la terrasse : sud est
- Risque d'inondation : pas situé en zone inondable
Certificats / Attestations
- Certificat d'électricité : non
Energie
- Label PEB : D
- PEB E-SPEC (kwh/m²/an) : 278
- Emission CO2 : 70
- E total : 77013 kWh/an
- PEB code unique : 20170521001014
Contact
Ce bien vous intéresse ? Contactez-nous via notre formulaire ou par téléphone.
Retour au listingCe site utilise des cookies
Nous utilisons des cookies pour assurer le bon fonctionnement du site. Vous pouvez consulter nos mentions légales et notre politique de confidentialité pour plus d'informations.
















