Description
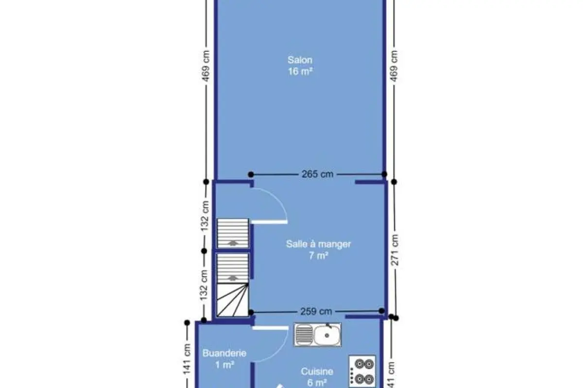
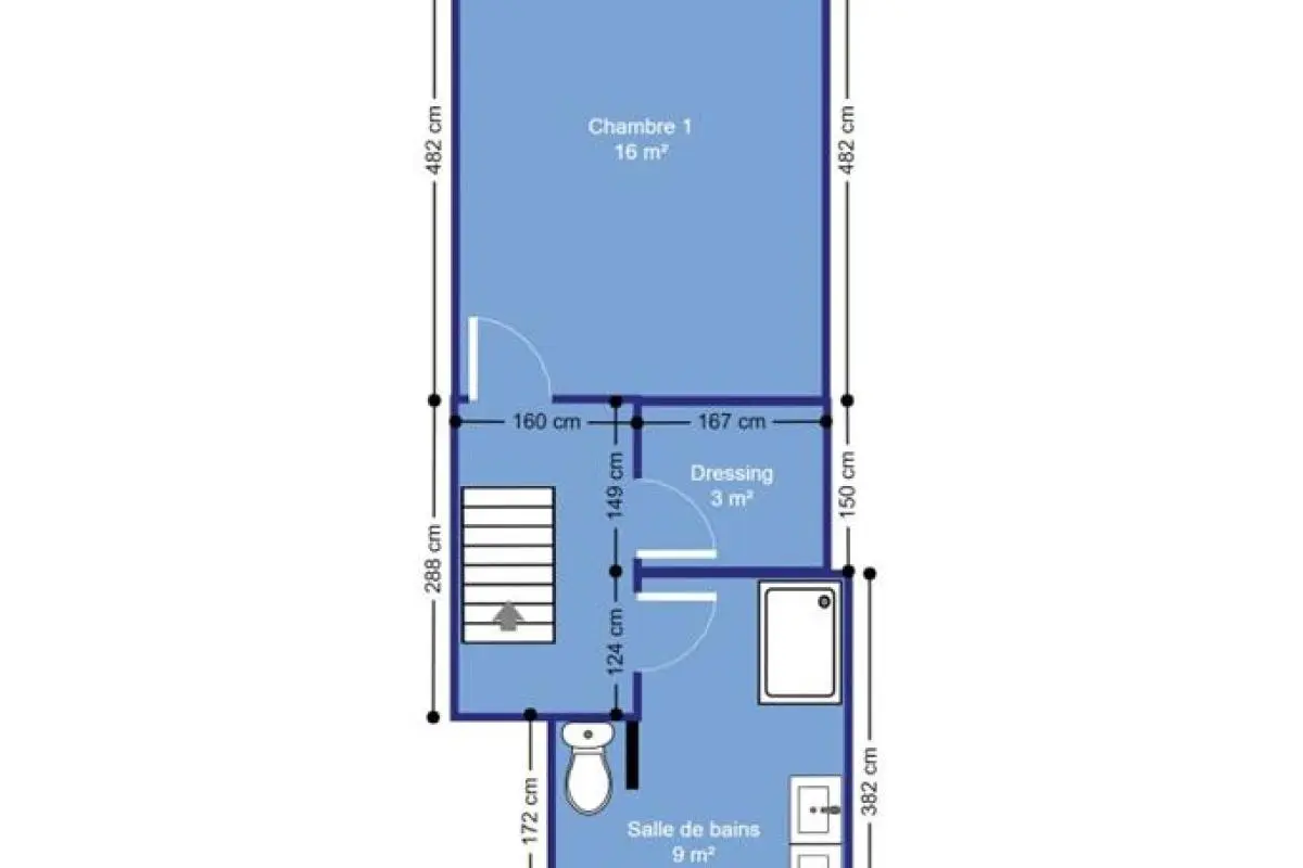
SOUS-OPTION .Au cœur de Genappe, charmante maison unifamiliale située à un jet de pierre de la Grand Place et de toutes les commodités citadines. La maison a subi une rénovation complète en 2012 (châssis, chauffage, électricité, salle de bain, sols, plafonds, murs, cuisine ...). Elle se compose, au rez-de-chaussée, d'un hall d'entrée, un séjour avec cassette, une cuisine américaine super équipée et d'une buanderie. Au 1er étage, un hall de nuit déversant une chambre, un dressing ainsi qu'une salle de bain avec douche à l'italienne. Au dernier étage, une chambre et un bureau. Aucun travaux à prévoir ! Possibilité d'obtenir les droits d'enregistrements réduits. Opportunité à saisir rapidement ! Faire offre à partir de 165.000 euros
Général
- Type de bien : Maison
- Condition : excellent état
- Disponibilité : à l'acte
- Jardin :
- Façade(s) : 2
Aspects financiers
- Revenu cadastral (€) : 305 €
Intérieur
- Cuisine : Oui
- Buanderie : Oui
- Nbre de toilette(s) : 1
- Nombre de sdd : 1
- Bureau : 7 m²
- Chambre 1 : 16 m²
- Chambre 2 : 12 m²
- Ascenseur : Non
- Double vitrage : Oui
- égouts : Oui
- électricité : Oui
- Salle de séjour : 23 m²
- Cuisine : 6 m²
- Chauffage : gaz (chau. centr.)
- Type de cuisine : super-équipée
- Télévision par cable : Oui
- Gaz : Oui
- Câbles téléphoniques : Oui
- Eau : Oui
- Cave : Oui
- Détecteur incendie : Oui
- Feu ouvert : Oui
- Adoucisseur : Oui
Extérieur
- Nombre d'étages : 2
- Année de rénovation : 2012
- Châssis : pvc
Terrain et environs
- Type d'environnement : centre ville
- Magasins : Oui
- Ecoles : Oui
- Transports en commun : Oui
- Centre sportif : Oui
- Autoroute : Oui
- Gare : Oui
Certificats / Attestations
- Certificat d'électricité : oui, conforme
Energie
- Label PEB : C
- PEB E-SPEC (kwh/m²/an) : 237
- Emission CO2 : 44
- E total : 23637 kWh/an
- PEB code unique : 20121017003127
Contact
Ce bien vous intéresse ? Contactez-nous via notre formulaire ou par téléphone.
Retour au listingCe site utilise des cookies
Nous utilisons des cookies pour assurer le bon fonctionnement du site. Vous pouvez consulter nos mentions légales et notre politique de confidentialité pour plus d'informations.


















