Description
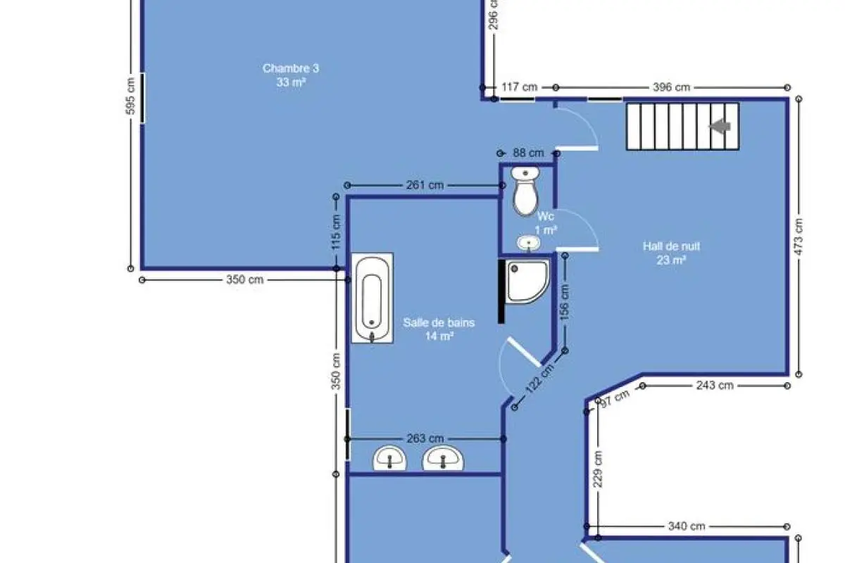
SOUS OPTION - A l'abris de toute nuisance sonore et au cœur d'un havre de paix, splendide villa 4 façades de 2004 érigée sur un terrain de 2236m². L'habitation peut se vanter d'être en excellent état général. Elle se compose comme suit : au rez-de-chaussée, hall d'entrée, WC séparé, buanderie, le séjour de 59m² avec la cuisine américaine super-équipée, un débarras et le garage. A l'étage, spacieux hall de nuit pouvant servir de bureau ou pièce polyvalente, 3 chambres et une salle de bain et de douche. Au second étage, spacieuse chambre avec point d'eau ainsi que deux greniers. Aucun travaux à prévoir. Panneaux photovoltaïques. Terrasse de 70m² avec une vue splendide sur la propriété. Garage et parking sur la propriété. Opportunité à saisir pour les amateurs de charme et de tranquillité. Faire offre à partir de 450.000 euros
Général
- Type de bien : Villa
- Condition : excellent état
- Disponibilité : à convenir
- Jardin :
- Façade(s) : 4
- Étage : 1
Aspects financiers
- Permis de bâtir : Oui
- Revenu cadastral (€) : 2195 €
Intérieur
- Cuisine : Oui
- Buanderie : Oui
- Nbre de toilette(s) : 2
- Nombre de sdd : 1
- Bureau : 20 m²
- Chambre 1 : 33 m²
- Chambre 2 : 30 m²
- Chambre 3 : 16 m²
- Chambre 4 : 16 m²
- Ascenseur : Non
- Double vitrage : Oui
- Contrôle d'accès : Oui
- égouts : Oui
- électricité : Oui
- Nbre de terrasse(s) : 1
- Salle de séjour : 59 m²
- Cuisine : 17 m²
- Chauffage : accumulateurs électriques
- Type de cuisine : super-équipée
- Alarme : Oui
- Télévision par cable : Oui
- Câbles téléphoniques : Oui
- Eau : Oui
- Grenier : Oui
- Détecteur incendie : Oui
- Feu ouvert : Oui
Extérieur
- Année de construction : 2004
- Nombre d'étages : 2
- Nombre de garage : 1
- Atelier : Oui
- Carport : Oui
- Châssis : pvc
- Surface de terrasse 1 : 70 m²
- Satellite : Oui
- Panneaux solaires : 24
- Nombre de parking : 4
Terrain et environs
- Type d'environnement : calme
- Magasins : Oui
- Ecoles : Oui
- Transports en commun : Oui
- Centre sportif : Oui
- Autoroute : Oui
- Gare : Oui
Energie
- Label PEB : C
- PEB E-SPEC (kwh/m²/an) : 180
- Emission CO2 : 43
- E total : 54177 kWh/an
- PEB code unique : 20180628006292
Contact
Ce bien vous intéresse ? Contactez-nous via notre formulaire ou par téléphone.
Retour au listingCe site utilise des cookies
Nous utilisons des cookies pour assurer le bon fonctionnement du site. Vous pouvez consulter nos mentions légales et notre politique de confidentialité pour plus d'informations.
























