Description
*** SOUS OPTION***A deux minutes à pied de la gare de Nivelles, spacieuse maison 2 façades de 160m² érigée sur un terrain de 200m². Situation idéale et pratique permettant les déplacements faciles et rapide. Composition : hall d'entrée, salon, salle-à-manger, cuisine équipée, WC, buanderie et la véranda. Au 1er étage, le hall de nuit desservant 2 chambres. Au second et dernier étage, une chambres ainsi qu'un grenier aménageable. Cave sous toute la maison. Agréable jardin avec terrasse. Garage individuel inclus dans le prix. Opportunité unique à saisir. Faire offre à partir de 250.000 euros
Général
- Type de bien : Maison
- Condition : bon état
- Disponibilité : en fonct. du locataire
- Jardin :
- Façade(s) : 2
Aspects financiers
- Loué : Oui
- Revenu cadastral (€) : 884 €
Intérieur
- Accès handicapés : Oui
- Cuisine : Oui
- Buanderie : 3 m²
- Nbre de toilette(s) : 2
- Nombre de sdd : 1
- Bureau : Oui
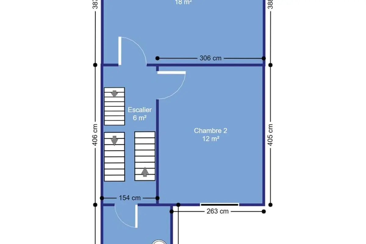
- Chambre 1 : 19 m²
- Chambre 2 : 13 m²
- Chambre 3 : 12 m²
- Ascenseur : Non
- Double vitrage : Oui
- égouts : Oui
- électricité : Oui
- Salle de séjour : 26 m²
- Cuisine : 14.5 m²
- Chauffage : mazout (chauf. centr.)
- Type de cuisine : équipée
- Télévision par cable : Oui
- Câbles téléphoniques : Oui
- Eau : Oui
- Grenier : 20m²
- Cave : Oui
- Détecteur incendie : Oui
Extérieur
- Nombre d'étages : 2
- Nombre de garage : 1
- Annexe : Oui
- Châssis : pvc
Terrain et environs
- Type d'environnement : proximité de la gare
- Magasins : Oui
- Ecoles : Oui
- Transports en commun : Oui
- Centre sportif : Oui
- Autoroute : Oui
- Gare : Oui
- Risque d'inondation : pas situé en zone inondable
Energie
- Label PEB : D
- PEB E-SPEC (kwh/m²/an) : 305
- Emission CO2 : 77
- E total : 39380 kWh/an
- PEB code unique : 20180901006395
Contact
Ce bien vous intéresse ? Contactez-nous via notre formulaire ou par téléphone.
Retour au listingCe site utilise des cookies
Nous utilisons des cookies pour assurer le bon fonctionnement du site. Vous pouvez consulter nos mentions légales et notre politique de confidentialité pour plus d'informations.



















