Vendu
Maison - 1480 Tubize
faire offre à partir de 320.000 €
Référence : 3584447
Description
Plus d'infos et de photos sur https://www.behomepartners.be/fr-BE/Details/Index/3584447. Parfaitement orientée et située dans un quartier calme et aéré, cette maison a tout pour vous séduire ! Presque entièrement remise à neuf avec goût, elle possède toutes les commodités qui sont à découvrir lors d'une visite. Faire offre à partir de 320 000 €
Général
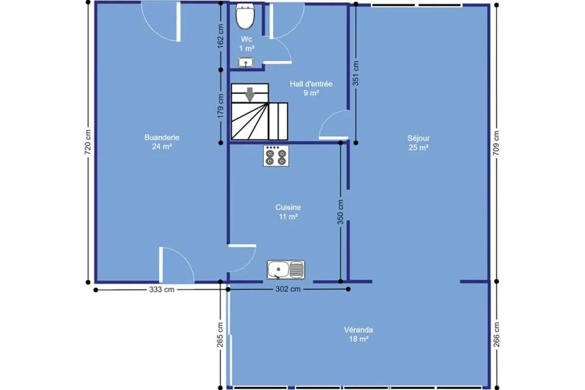
- Type de bien : Maison
- Condition : bon état
- Disponibilité : à l'acte
- Jardin :
- Façade(s) : 3
Aspects financiers
- Précompte immobilier : 791 €
- Revenu cad. indexé : 1527 €
- Revenu cadastral (€) : 855 €
- Affectation urbanistique : zone d'habitat
Intérieur
- Chauffage (ind/coll) : individuel
- Nbre de toilette(s) : 2
- Nombre de sdd : 1
- Chambre 1 : 13 m²
- Chambre 2 : 13 m²
- Chambre 3 : 10 m²
- Ascenseur : Non
- Double vitrage : Oui
- Largeur de façade : 10
- égouts : Oui
- électricité : Oui
- Nbre de terrasse(s) : 1
- Cuisine : 11 m²
- Chauffage : mazout (chauf. centr.)
- Orientation de la terrasse 1 : sud-ouest
- Type de cuisine : amer. super-équipée
- Eau : Oui
Extérieur
- Châssis : pvc
- Surface de terrasse 1 : 50 m²
- Atelier : 60 m²
Terrain et environs
- écoles : 1000 m
- Transports en commun : 1100 m
- Type d'environnement : campagne
- Autoroute : 3400 m
- Gare : 1200 m
- Orientation de la terrasse : sud ouest
- Orientation du jardin : sud ouest
- Risque d'inondation : pas situé en zone inondable
Certificats / Attestations
- Certificat d'électricité : oui, conforme
Energie
- Label PEB : d
- PEB E-SPEC (kwh/m²/an) : 272
- Emission CO2 : 67
- E total : 35787 kWh/an
- PEB code unique : fc225773@gmail.com
Contact
Ce bien vous intéresse ? Contactez-nous via notre formulaire ou par téléphone.
Retour au listingCe site utilise des cookies
Nous utilisons des cookies pour assurer le bon fonctionnement du site. Vous pouvez consulter nos mentions légales et notre politique de confidentialité pour plus d'informations.
Accepter les cookies
Paramétrer les cookies







































