Description
Magnifique appartement à deux pas du shopping de Nivelles, établi au dernier étage de l'immeuble, vous procurant une vue imprenable! Vous serez charmé par sa situation unique proche de toutes les commodités. Il se compose d'un hall desservant deux chambres, une cuisine super équipée, un vaste séjour, une salle de douche, un WC et une buanderie. De plus vous bénéficierez d'un garage ainsi que d'une cave. l'immeuble est érigé en recul au cœur d'un parc aménagé et totalement privé. Opportunité unique! Faire offre à partir de 180 000 €.
Général
- Type de bien : Appartement
- Condition : bon état
- Disponibilité : à l'acte
- Jardin :
- Étage : 1
Aspects financiers
- Revenu cadastral (€) : 1011 €
Intérieur
- Cuisine : Oui
- Buanderie : Oui
- Nbre de cave(s) : 1
- Chauffage (ind/coll) : collectif
- Nbre de toilette(s) : 1
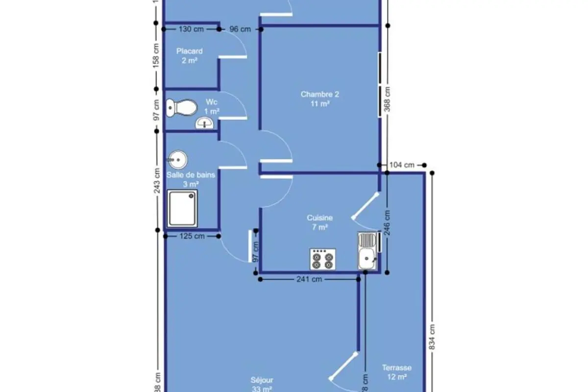
- Chambre 1 : 13 m²
- Chambre 2 : 11 m²
- Ascenseur : Oui
- Double vitrage : Oui
- égouts : Oui
- électricité : Oui
- Nbre de terrasse(s) : 1
- Salle de séjour : 33 m²
- Cuisine : 7 m²
- Salle de bain 1 : 3 m²
- Chauffage : mazout (chauf. centr.)
- Type d'ascenseur : personnes
- Orientation de la terrasse 1 : est
- Type de cuisine : amer. super-équipée
- Parlophone : Oui
- Câbles téléphoniques : Oui
- Eau : Oui
- Cave : Oui
- Hall de nuit : 11 m²
- Détecteur incendie : Oui
- Feu ouvert : Oui
Extérieur
- Année de construction : 1968
- Nombre d'étages : 3
- Année de rénovation : 2018
- Châssis : pvc
- Surface de terrasse 1 : 15 m²
Terrain et environs
- Type d'environnement : calme
- Magasins : Oui
- Ecoles : Oui
- Transports en commun : Oui
- Centre sportif : Oui
- Autoroute : Oui
- Gare : Oui
- Risque d'inondation : pas situé en zone inondable
Certificats / Attestations
- Certificat d'électricité : non
Energie
- Label PEB : C
- PEB E-SPEC (kwh/m²/an) : 183
- Emission CO2 : 46
- E total : 16321 kWh/an
- PEB code unique : 20181112018980
Contact
Ce bien vous intéresse ? Contactez-nous via notre formulaire ou par téléphone.
Retour au listingCe site utilise des cookies
Nous utilisons des cookies pour assurer le bon fonctionnement du site. Vous pouvez consulter nos mentions légales et notre politique de confidentialité pour plus d'informations.
















