Description
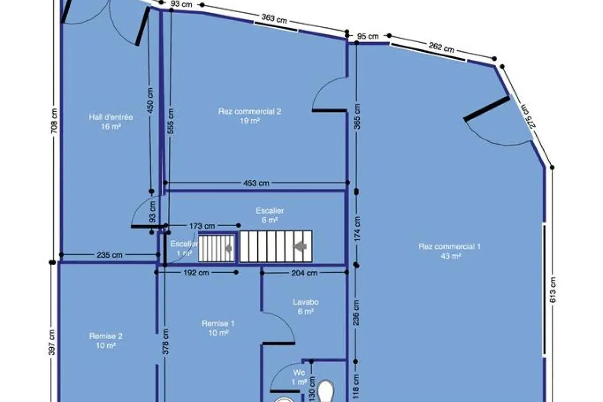
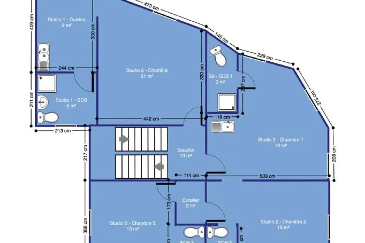
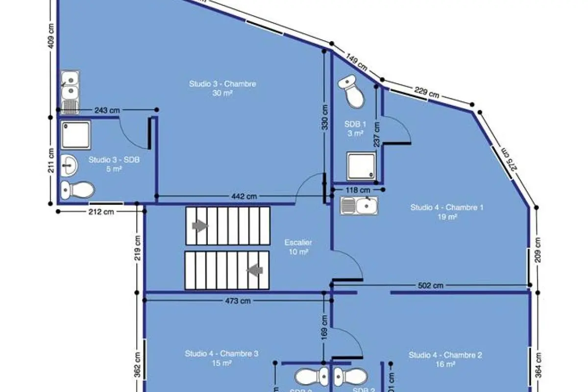
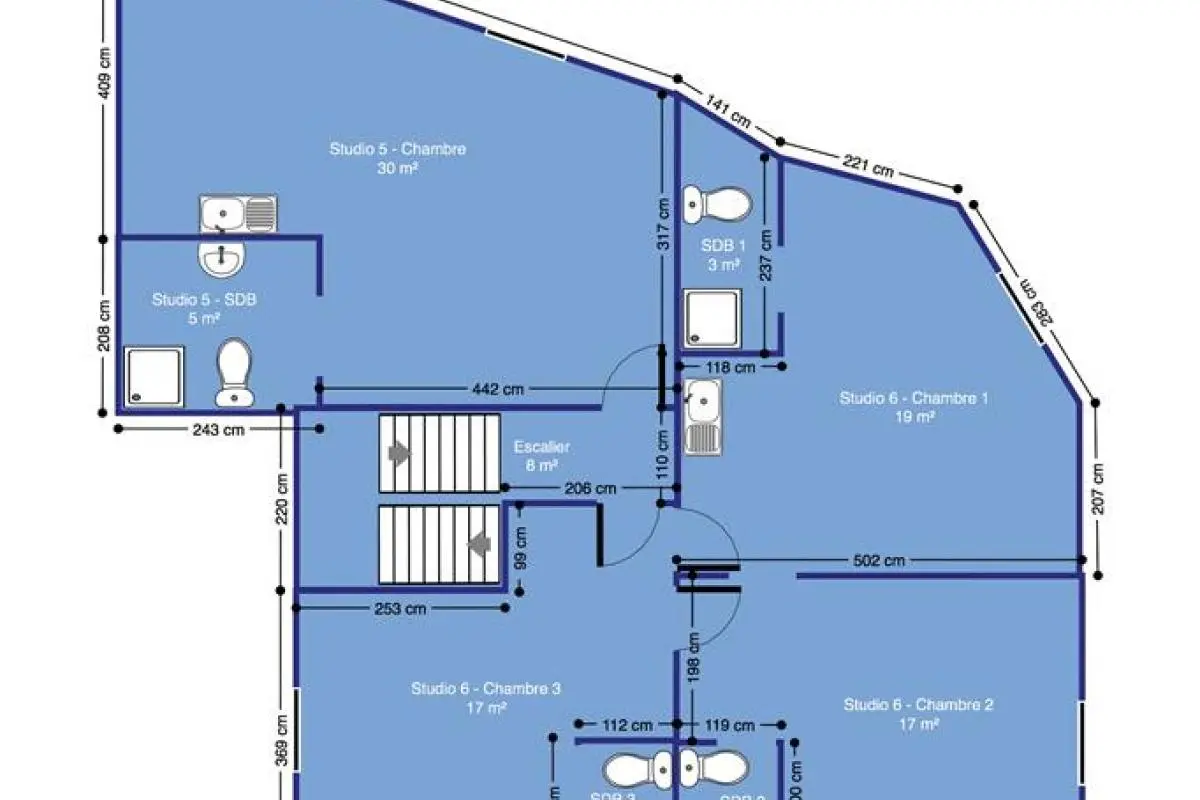
A proximité directe de la gare de Nivelles, Be Home Partners vous propose ce spacieux immeuble à appartements. Il se compose d'un rez-de-chaussée commercial accessible via une entrée indépendante et de 6 appartements répartis sur 3 étages. L'immeuble se trouve dans un bon état général et n'attend qu'à être loué. Possibilité d'y faire un immeuble de rapport avec rez-de-chaussée commercial et six studios ou immeuble de bureau ou maison de commerce. Proximité directe et à pieds des facilités urbaines telles que les commerces, les transports en communs ou les écoles. Opportunité rare pour une situation unique. Faire offre à partir de 550.000 euros
Général
- Type de bien : Immeuble à appartements
- Condition : bon état
- Disponibilité : à l'acte
- Jardin :
- Façade(s) : 2
Aspects financiers
- Revenu cadastral (€) : 5808 €
Intérieur
- Buanderie : Oui
- Chauffage (ind/coll) : collectif
- Nbre de toilette(s) : 12
- Ascenseur : Non
- Double vitrage : Oui
- Contrôle d'accès : Oui
- égouts : Oui
- électricité : Oui
- Caves : 54 m²
- Chauffage : gaz (chau. centr.)
- Bureau : 105 m²
- Télévision par cable : Oui
- Gaz : Oui
- Câbles téléphoniques : Oui
- Eau : Oui
- Cave : Oui
- Détecteur incendie : Oui
Extérieur
- Nombre d'étages : 3
- Année de rénovation : 2016
- Châssis : pvc
Terrain et environs
- Type d'environnement : proximité de la gare
- Magasins : Oui
- Ecoles : Oui
- Transports en commun : Oui
- Centre sportif : Oui
- Autoroute : Oui
- Gare : Oui
Energie
- Label PEB : F
- PEB E-SPEC (kwh/m²/an) : 478
- Emission CO2 : 116
- E total : 207507 kWh/an
- PEB code unique : 20170904016158
Contact
Ce bien vous intéresse ? Contactez-nous via notre formulaire ou par téléphone.
Retour au listingCe site utilise des cookies
Nous utilisons des cookies pour assurer le bon fonctionnement du site. Vous pouvez consulter nos mentions légales et notre politique de confidentialité pour plus d'informations.






























