Description
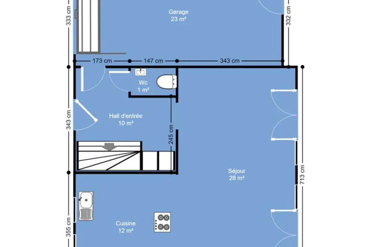
SOUS OPTION Magnifique construction neuve SANS TVA située au cœur du lotissement très prisé à Arquennes, situation qui vous charmera de part sa proximité à toutes les facilités. Le rez-de-chaussée se compose d'un vaste hall avec WC séparé desservant le séjour avec cuisine super équipé et le garage. Les pièces de vie vous procurent une vue imprenable sur le jardin et terrasse parfaitement orientés. Au premier étage vous bénéficierez d'une salle de bain avec WC ainsi que quatre chambres dont une suite parentale avec dressing et salle de douche. Opportunité unique à ne surtout pas manquer! Faire offre à partir de 335 000 €.
Général
- Type de bien : Maison
- Condition : neuf
- Disponibilité : à l'acte
- Jardin :
- Jardin : 468 m²
- Façade(s) : 2
- Étage : 1
Aspects financiers
- Revenu cadastral (€) : 767 €
Intérieur
- Cuisine : Oui
- Buanderie : Oui
- Nbre de toilette(s) : 2
- Nombre de sdd : 2
- Chambre 1 : 12 m²
- Chambre 2 : 11 m²
- Chambre 3 : 11 m²
- Chambre 4 : 9 m²
- Volets : Oui
- Ascenseur : Non
- Double vitrage : Oui
- égouts : Oui
- électricité : Oui
- Nbre de terrasse(s) : 1
- Salle de séjour : 28 m²
- Cuisine : 12 m²
- Chauffage : gaz (chau. centr.)
- Orientation de la terrasse 1 : sud-est
- Type de cuisine : amer. super-équipée
- Alarme : Oui
- Télévision par cable : Oui
- Gaz : Oui
- Câbles téléphoniques : Oui
- Eau : Oui
- Grenier : Oui
- Détecteur incendie : Oui
Extérieur
- Année de construction : 2015
- Nombre d'étages : 1
- Nombre de garage : 1
- Espace ventilé : Oui
- Châssis : pvc
- Surface de terrasse 1 : 49 m²
- Type de toit : en pente
- Citerne d'eau : Oui
- Fosse septique : Oui
- Nombre de parking : 2
Terrain et environs
- Type d'environnement : résidentiel
- Magasins : Oui
- Ecoles : Oui
- Transports en commun : Oui
- Centre sportif : Oui
- Autoroute : Oui
- Gare : Oui
- Risque d'inondation : pas situé en zone inondable
Certificats / Attestations
- Certificat d'électricité : oui, conforme
Energie
- Label PEB : B
- PEB E-SPEC (kwh/m²/an) : 106
- Emission CO2 : 19
- E total : 18294 kWh/an
- PEB code unique : 20161115500870
Contact
Ce bien vous intéresse ? Contactez-nous via notre formulaire ou par téléphone.
Retour au listingCe site utilise des cookies
Nous utilisons des cookies pour assurer le bon fonctionnement du site. Vous pouvez consulter nos mentions légales et notre politique de confidentialité pour plus d'informations.


























