Description
Superbe maison quatre façades érigée sur un terrain de plus de 6 ares vous procurant un accès latérale afin d'y parquer plusieurs véhicules. Vous serez charmés par sa situation unique au cœur du petit village d'Epinois néanmoins proche de toutes les facilités. Au rez-de-chaussée elle se compose d'un vaste séjour ouvert sur une cuisine entièrement équipée, une salle d'eau avec bain et douche ainsi qu'une buanderie. Au premier étage vous bénéficierez de trois chambres spacieuses et un WC. Possibilité de frais réduits. Opportunité unique! Faire offre à partir de 190 000 €.
Général
- Type de bien : Maison
- Condition : bon état
- Disponibilité : à l'acte
- Jardin :
- Jardin : 536 m²
- Façade(s) : 4
Aspects financiers
- Revenu cadastral (€) : 220 €
Intérieur
- Cuisine : Oui
- Buanderie : 6 m²
- Nbre de toilette(s) : 2
- Nombre de sdd : 1
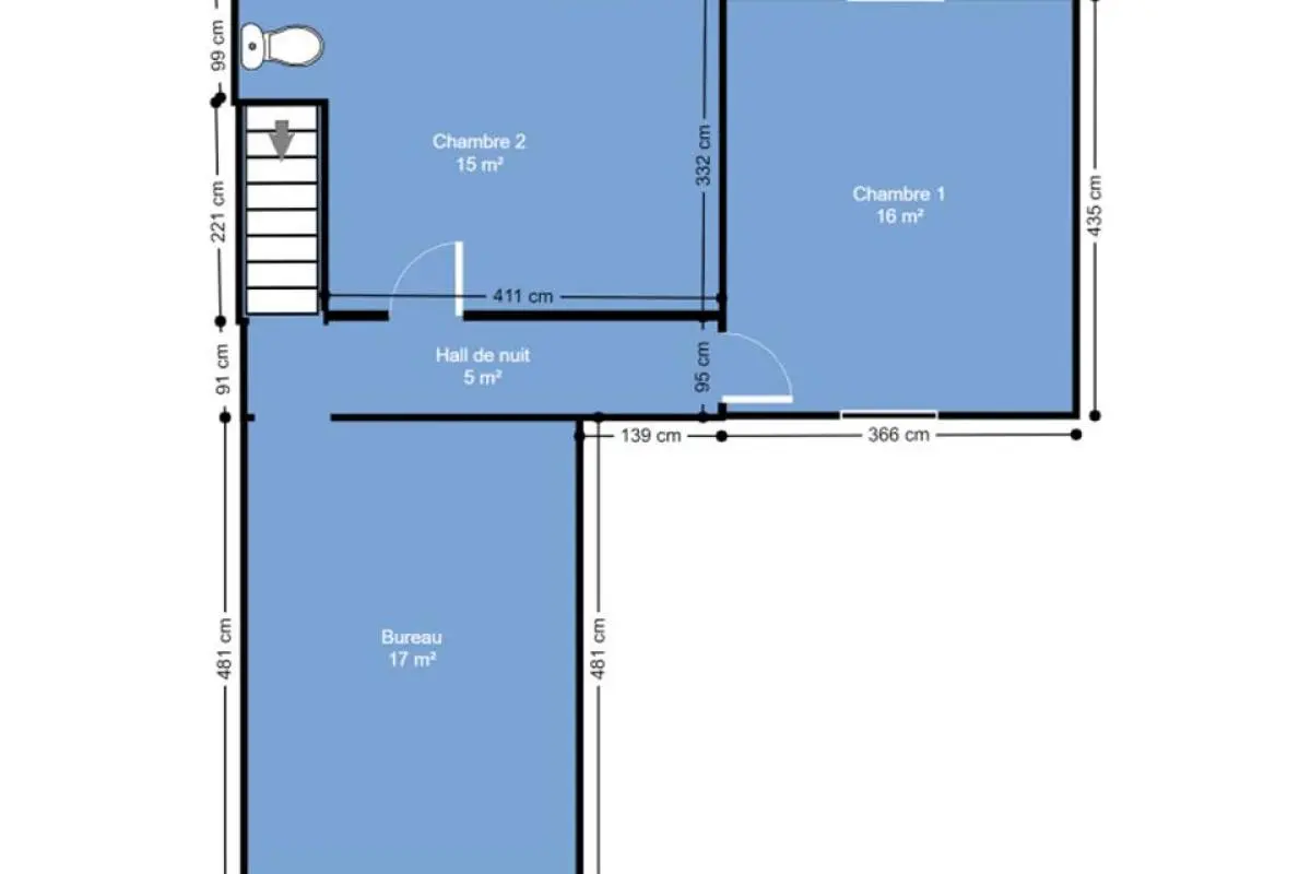
- Chambre 1 : 16 m²
- Chambre 2 : 15 m²
- Chambre 3 : 17 m²
- Ascenseur : Non
- Double vitrage : Oui
- égouts : Oui
- électricité : Oui
- Salle de séjour : 34 m²
- Cuisine : 18 m²
- Caves : 12 m²
- Chauffage : gaz (chau. centr.)
- Type de cuisine : amer. super-équipée
- Télévision par cable : Oui
- Gaz : Oui
- Câbles téléphoniques : Oui
- Eau : Oui
- Cave : Oui
Extérieur
- Nombre d'étages : 1
- Piscine : Oui
- Année de rénovation : 2018
- Châssis : bois
- Surface de terrasse 1 : 42 m²
- Type de toit : en pente
- Citerne d'eau : Oui
- Nombre de parking : 4
Terrain et environs
- Type d'environnement : calme
- Magasins : Oui
- Ecoles : Oui
- Transports en commun : Oui
- Centre sportif : Oui
- Autoroute : Oui
- Gare : Oui
- Risque d'inondation : pas situé en zone inondable
Certificats / Attestations
- Certificat d'électricité : non
Energie
- Label PEB : G
- PEB E-SPEC (kwh/m²/an) : 648
- Emission CO2 : 118
- E total : 83113 kWh/an
- PEB code unique : 20150419008254
Contact
Ce bien vous intéresse ? Contactez-nous via notre formulaire ou par téléphone.
Retour au listingCe site utilise des cookies
Nous utilisons des cookies pour assurer le bon fonctionnement du site. Vous pouvez consulter nos mentions légales et notre politique de confidentialité pour plus d'informations.























