Vendu
Maison - 6210 Frasnes-lez-Gosselies
175.000 €
Référence : 3612914
Description
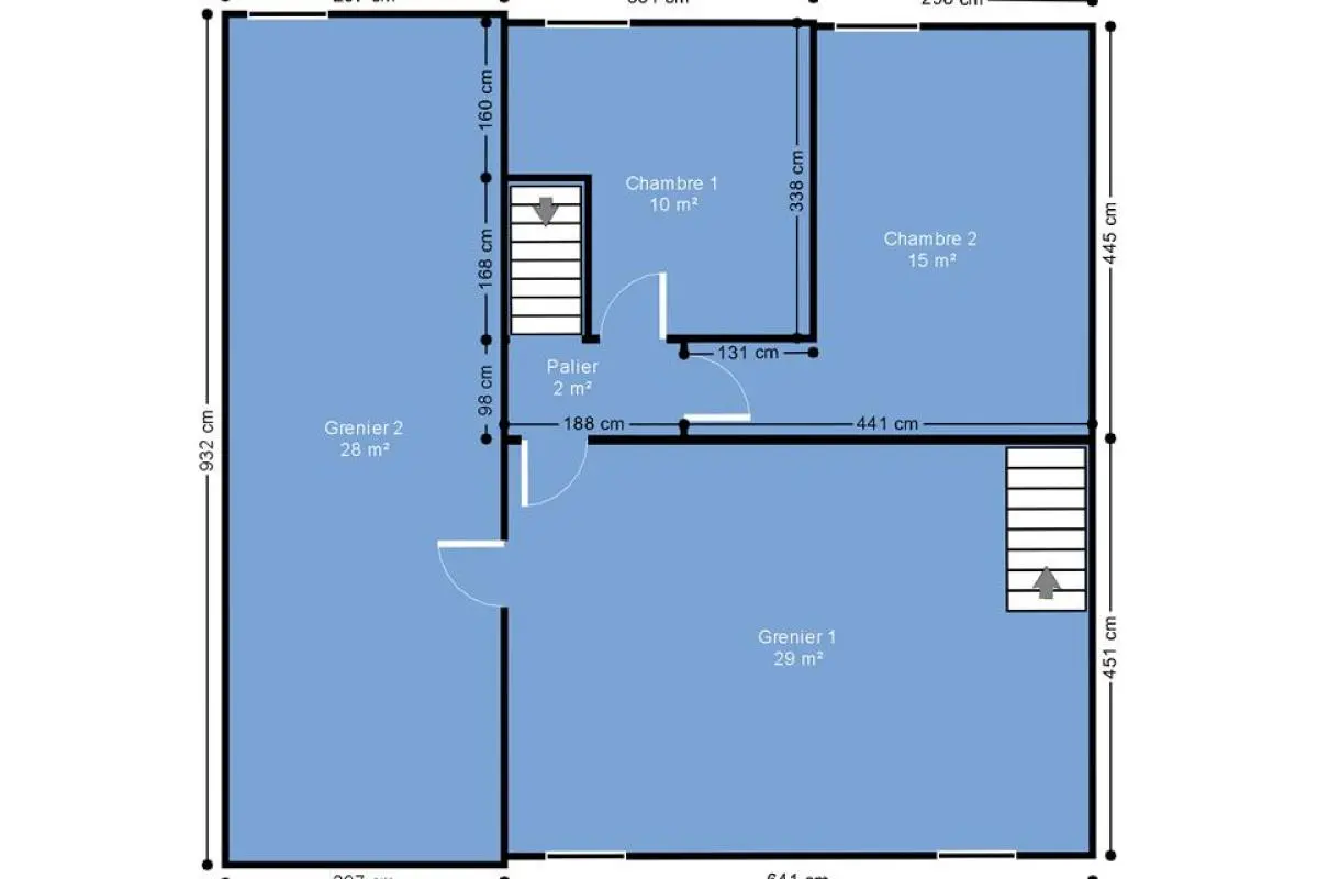
SOUS OPTION Plus d'infos et les plans sur www.behomepartners.be. Parfaitement située et orientée, cette maison 3 façades de 238 m² bruts, érigée sur un terrain de 9 ares présente un énorme potentiel mais nécessite des travaux. actuellement en deux chambres, elle pourra facilement accueillir 5 chambres. Caves partielles, grenier aménageable, chaudière Saint Roch récente, châssis récents. Possibilité d'obtention des frais réduits.
Général
- Type de bien : Maison
- Condition : à rénover
- Disponibilité : immédiatement
- Jardin :
- Jardin : 741 m²
- Façade(s) : 3
- Étage : 1
Aspects financiers
- Précompte immobilier : 588 €
- Revenu cad. indexé : 908 €
- Revenu cadastral (€) : 514 €
- Affectation urbanistique : zone d'habitat rurale
Intérieur
- Cuisine : Oui
- Chauffage (ind/coll) : individuel
- Nbre de toilette(s) : 1
- Nombre de sdd : 1
- Chambre 1 : 15 m²
- Chambre 2 : 28 m²
- Chambre 3 : 10 m²
- Ascenseur : Non
- Double vitrage : Oui
- électricité : Oui
- Nbre de terrasse(s) : 1
- Salle de séjour : 20 m²
- Salle à manger : 28 m²
- Cuisine : 10 m²
- Caves : 37 m²
- Chauffage : mazout (chauf. centr.)
- Orientation de la terrasse 1 : sud-ouest
- Type de cuisine : non-équipée
- Eau : Oui
Extérieur
- Année de construction : 1899
- Nombre d'étages : 1
- Châssis : pvc
Terrain et environs
- Type d'environnement : campagne
Certificats / Attestations
- Certificat d'électricité : oui, non conforme
Energie
- Label PEB : g
- PEB E-SPEC (kwh/m²/an) : 712
- Emission CO2 : 175
- PEB code unique : 20181112019451
Contact
Ce bien vous intéresse ? Contactez-nous via notre formulaire ou par téléphone.
Retour au listingCe site utilise des cookies
Nous utilisons des cookies pour assurer le bon fonctionnement du site. Vous pouvez consulter nos mentions légales et notre politique de confidentialité pour plus d'informations.
Accepter les cookies
Paramétrer les cookies



















