Description
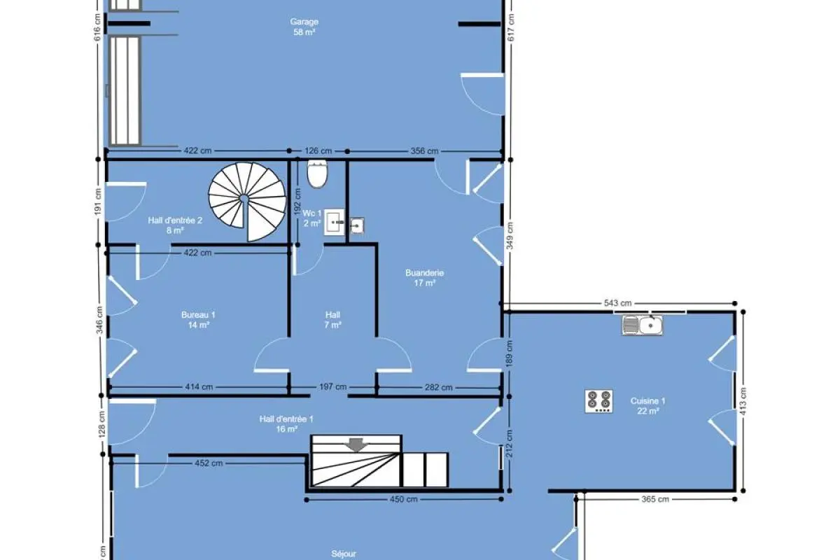
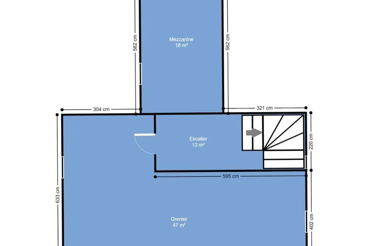
Rénovation étonnante et complète vous proposant l'alliance de matériaux de qualité et un goût unique pour la décoration tendance. Vous serez charmés par les espaces et le confort que vous propose cette habitation de plus de 500 mètres carrés, en effet l'espace vous offre de nombreuses possibilités. Elle se compose comme suit, au rez-de-chaussée, un hall d’entrée, spacieux living, cuisine super-équipée, une buanderie, un WC séparé, une chambre et le double garage. Au 1er étage de la partie principale, hall de nuit desservant, un WC, une salle de bain, une salle de douche et deux chambres. Au dernier étage, spacieux grenier, déjà isolé, pouvant être aménagé en pièces supplémentaires. Au 1er étage de la seconde partie, accessible via l’habitation principale ou via un accès à rue, spacieux bureau avec salle de réunion, WC et kitchenette. Cet espace peut être affecté à une profession libérale ou fusionner avec la partie principale. Possibilité d'acquérir un terrain à bâtir en supplément ! Aucun travaux à prévoir suite à la rénovation totale en 2006. Deux garages doubles, un garage en bois pouvant servir de chalet de jardin ainsi que du parking aisé seront disponibles sur la propriété. Terrasse de plus de 160m² aménagée en 2017 et exposée sud-ouest. Conformité électrique. Citerne d’eau de pluie … Cette habitation n’attend plus que vous pour y apporter votre touche personnelle. Opportunité unique à saisir ! Faire offre à partir de 375.000 euros
Général
- Type de bien : Villa
- Condition : excellent état
- Disponibilité : à l'acte
- Jardin :
- Façade(s) : 4
Aspects financiers
- Permis de bâtir : Oui
Intérieur
- Accès handicapés : Oui
- Surface bâtie : 160 m²
- Cuisine : Oui
- Buanderie : 17 m²
- Nbre de toilette(s) : 3
- Nombre de sdd : 1
- Bureau : 67 m²
- Chambre 1 : 19 m²
- Chambre 2 : 18.5 m²
- Chambre 3 : 15 m²
- Ascenseur : Non
- Double vitrage : Oui
- égouts : Oui
- électricité : Oui
- Nbre de terrasse(s) : 1
- Salle de séjour : 48 m²
- Cuisine : 23 m²
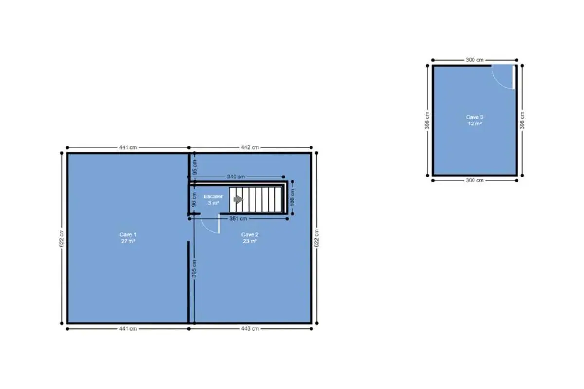
- Caves : 62 m²
- Chauffage : chauffage au sol
- Possibilité profession libérale : 82 m²
- Orientation de la terrasse 1 : sud-ouest
- Type de cuisine : super-équipée
- Alarme : Oui
- Télévision par cable : Oui
- Gaz : Oui
- Parlophone : Oui
- Câbles téléphoniques : Oui
- Eau : Oui
- Grenier : 65m²
- Cave : Oui
- Détecteur incendie : Oui
- Feu ouvert : Oui
Extérieur
- Nombre d'étages : 2
- Nombre de garage : 3
- Atelier : Oui
- Année de rénovation : 2006
- Châssis : pvc
- Surface de terrasse 1 : 160 m²
- Citerne d'eau : Oui
- Citerne d'eau - capacité : 5000
- Nombre de parking : 6
Terrain et environs
- Orientation du bâtiment : sud-ouest
- Type d'environnement : calme
- Magasins : Oui
- Ecoles : Oui
- Transports en commun : Oui
- Centre sportif : Oui
- Autoroute : Oui
- Gare : Oui
- Orientation de la terrasse : sud ouest
- Orientation du jardin : sud ouest
Certificats / Attestations
- Certificat d'électricité : oui, conforme
Energie
- Label PEB : D
- PEB E-SPEC (kwh/m²/an) : 337
- Emission CO2 : 61
- E total : 66483 kWh/an
- PEB code unique : 20181201000563
Contact
Ce bien vous intéresse ? Contactez-nous via notre formulaire ou par téléphone.
Retour au listingCe site utilise des cookies
Nous utilisons des cookies pour assurer le bon fonctionnement du site. Vous pouvez consulter nos mentions légales et notre politique de confidentialité pour plus d'informations.






























