Description
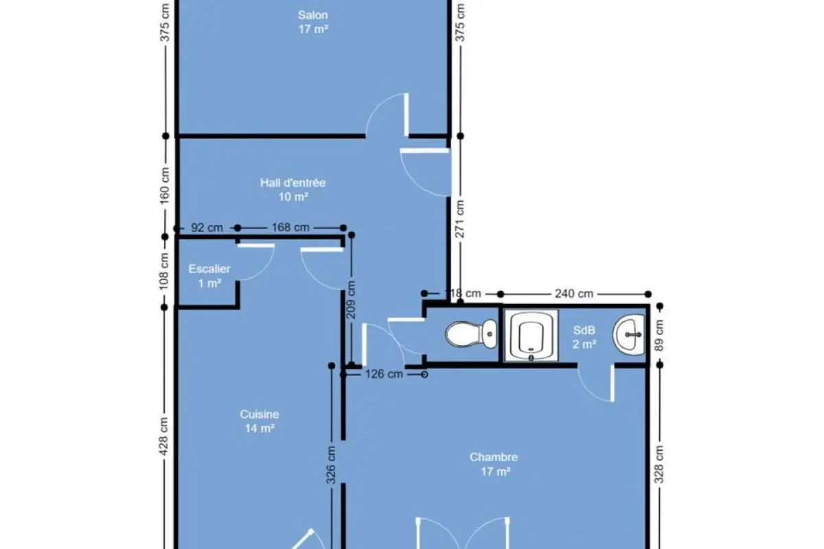
A un jet de pierre de la Grand Place de Nivelles, nous vous proposons cet appartement rez-de-chaussée situé dans une petite copropriété. L’appartement possède deux accès, un par les communs et un second directement de la rue. Il se compose comme suit : un hall d’entrée, un WC séparé, un living, un espace cuisine, une chambre et une salle de douche. Petite terrasse sur l’arrière. Quelques rénovations à prévoir. Opportunité unique à saisir de par sa situation stratégique !
Général
- Type de bien : Rez-de-chaussée
- Condition : à rafraîchir
- Disponibilité : à l'acte
- Jardin :
- Étage : 1
Aspects financiers
- Revenu cadastral (€) : 966 €
Intérieur
- Accès handicapés : Oui
- Nbre de toilette(s) : 1
- Chambre 1 : 17 m²
- égouts : Oui
- électricité : Oui
- Nbre de terrasse(s) : 1
- Salle de séjour : 17 m²
- Cuisine : 14 m²
- Chauffage : accumulateurs électriques
- Parlophone : Oui
- Câbles téléphoniques : Oui
- Eau : Oui
Extérieur
- Année de construction : 1965
- Nombre d'étages : 4
- Châssis : bois
Terrain et environs
- Type d'environnement : centre ville
- Magasins : Oui
- Ecoles : Oui
- Transports en commun : Oui
- Centre sportif : Oui
- Autoroute : Oui
- Gare : Oui
- Risque d'inondation : pas situé en zone inondable
Energie
- Label PEB : E
- PEB E-SPEC (kwh/m²/an) : 387
- E total : 33510 kWh/an
- PEB code unique : 20190903014294
Contact
Ce bien vous intéresse ? Contactez-nous via notre formulaire ou par téléphone.
Retour au listingCe site utilise des cookies
Nous utilisons des cookies pour assurer le bon fonctionnement du site. Vous pouvez consulter nos mentions légales et notre politique de confidentialité pour plus d'informations.









