Description
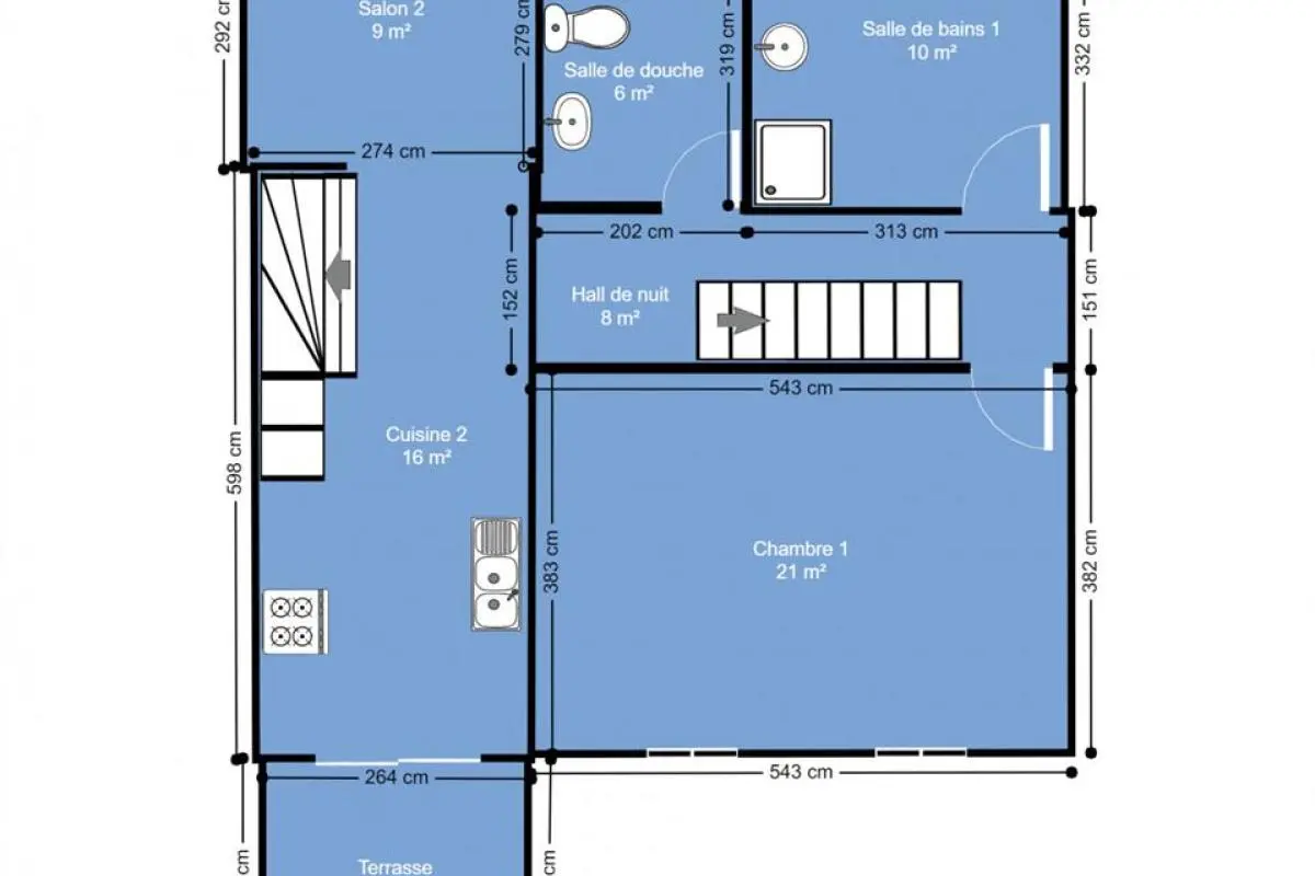
Au cœur d’Ophain-Bois-Seigneur-Isaac, spacieuse maison disposant de vastes volumes. Celle-ci dispose de deux entrées distinctes afin de pouvoir exercer une profession libérale ou avoir un second logement privatif pour un enfant ou parent. La maison principale se compose, au rez-de-chaussée, d’un hall d’entrée, un débarras, un salon ou bureau, un spacieux séjour avec véranda, une cuisine super-équipée, une buanderie et un WC. Au er étage, un hall de nuit desservant une chambre, une salle de bain et une salle de douche. Au second étage, un pallier desservant 3 chambres. Dans la seconde partie, au rez-de-chaussée, un hall d’entrée avec WC. Au 1er étage, un séjour avec cuisine ouverte et un accès à une terrasse. Au second étage, une chambre et une salle de douche. Au dernier étage, une mezzanine. L’habitation principale dispose de trois grandes terrasses dont une couverte avec vue sur le jardin. Aucuns travaux à prévoir ! Panneaux photovoltaïques avec certificats verts pour encore 6 ans. Opportunité unique à saisir ! Contactez-nous rapidement pour une visite.
Général
- Type de bien : Maison
- Condition : excellent état
- Disponibilité : à l'acte
- Jardin :
- Façade(s) : 2
Aspects financiers
- Revenu cadastral (€) : 1114 €
Intérieur
- Cuisine : Oui
- Buanderie : Oui
- Chauffage (ind/coll) : individuel
- Nbre de toilette(s) : 5
- Véranda : Oui
- Bureau : Oui
- Chambre 1 : 21 m²
- Chambre 2 : 21 m²
- Chambre 3 : 17 m²
- Chambre 4 : 12 m²
- Ascenseur : Non
- Double vitrage : Oui
- Contrôle d'accès : Oui
- égouts : Oui
- électricité : Oui
- Nbre de terrasse(s) : 2
- Salle de séjour : 26 m²
- Salle à manger : 17 m²
- Cuisine : 10 m²
- Chauffage : gaz (chau. centr.)
- Type de cuisine : amer. super-équipée
- Télévision par cable : Oui
- Gaz : Oui
- Câbles téléphoniques : Oui
- Eau : Oui
- Grenier : Oui
- Cave : Oui
- Détecteur incendie : Oui
- Feu ouvert : Oui
Extérieur
- Nombre d'étages : 2
- Châssis : pvc
- Surface de terrasse 1 : 26 m²
Terrain et environs
- Type d'environnement : zone d'habitation
- Magasins : Oui
- Ecoles : Oui
- Transports en commun : Oui
- Centre sportif : Oui
- Autoroute : Oui
- Gare : Oui
- Risque d'inondation : pas situé en zone inondable
Energie
- Label PEB : C
- PEB E-SPEC (kwh/m²/an) : 218
- Emission CO2 : 40
- E total : 14406 kWh/an
- PEB code unique : 20180710016351
Contact
Ce bien vous intéresse ? Contactez-nous via notre formulaire ou par téléphone.
Retour au listingCe site utilise des cookies
Nous utilisons des cookies pour assurer le bon fonctionnement du site. Vous pouvez consulter nos mentions légales et notre politique de confidentialité pour plus d'informations.






























