Description
Nous vous proposons cette magnifique maison en pierre située au cœur du village de Neuville, en partie rénovée vous serez charmés par son cachet et sa situation offrant une vue exceptionnelle. Proche de toutes les commodités elle vous propose un potentiel unique. Elle se compose comme suit: au rez-de-chaussée; une salle à manger, un salon, une cuisine équipée, une salle de douche et une cave servant de chaufferie. Au premier étage, vous bénéficiez de deux chambres entièrement rénovées, deux autres chambres sont en court d’aménagement. Un jardin est également disponible ainsi qu'un garage tous deux non-attenant à la maison. Possibilité de frais réduits! Faire offre à partir de 125 000 €.
Général
- Type de bien : Maison
- Condition : bon état
- Disponibilité : à l'acte
- Jardin :
- Jardin : 248 m²
- Façade(s) : 3
- Étage : 1
Aspects financiers
- Revenu cadastral (€) : 313 €
Intérieur
- Cuisine : Oui
- Nbre de toilette(s) : 1
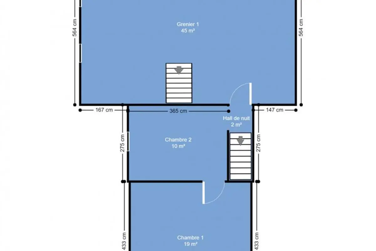
- Chambre 1 : 19 m²
- Chambre 2 : 10 m²
- Chambre 3 : 36 m²
- Chambre 4 : 45 m²
- Ascenseur : Non
- Double vitrage : Oui
- égouts : Oui
- électricité : Oui
- Salle de séjour : 24 m²
- Salle à manger : 18 m²
- Cuisine : 10 m²
- Caves : 14 m²
- Chauffage : mazout (chauf. centr.)
- Type de cuisine : amer. équipée
- Télévision par cable : Oui
- Câbles téléphoniques : Oui
- Eau : Oui
- Cave : Oui
Extérieur
- Année de construction : 1900
- Nombre d'étages : 2
- Nombre de garage : 1
- Année de rénovation : 2011
- Châssis : bois
- Surface de terrasse 1 : 22 m²
- Nombre de parking : 1
Terrain et environs
- Magasins : 637 m
- Transports en commun : 500 m
- Type d'environnement : calme
- Magasins : Oui
- Transports en commun : Oui
- Autoroute : 1200 m
- Gare : 2000 m
- Risque d'inondation : pas situé en zone inondable
Certificats / Attestations
- Certificat d'électricité : oui, non conforme
Energie
- Label PEB : G
- PEB E-SPEC (kwh/m²/an) : 644
- Emission CO2 : 160
- E total : 103107 kWh/an
- PEB code unique : 20200625027680
Contact
Ce bien vous intéresse ? Contactez-nous via notre formulaire ou par téléphone.
Retour au listingCe site utilise des cookies
Nous utilisons des cookies pour assurer le bon fonctionnement du site. Vous pouvez consulter nos mentions légales et notre politique de confidentialité pour plus d'informations.





















