Description
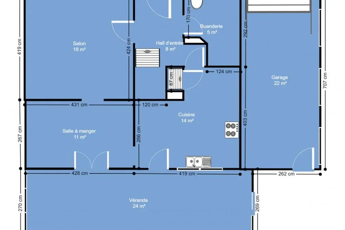
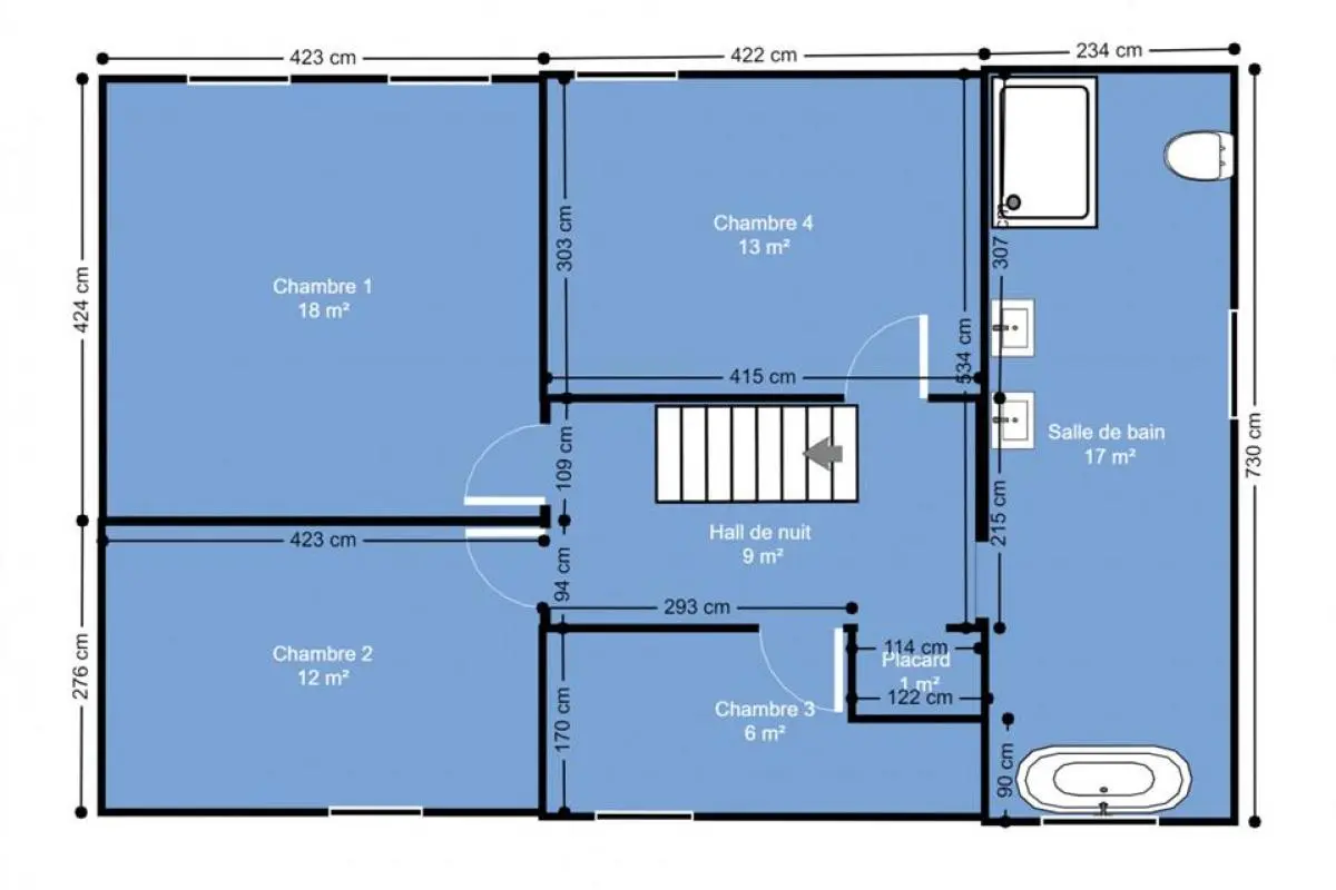
Nous vous proposons cette magnifique maison style fermette alliant charme et authenticité. Erigée sur un vaste terrain parfaitement arboré, vous serez charmés par sa situation unique, au cœur du village de Mellery offrant un environnement d’exception. Elle se compose comme suit; au rez-de-chaussée: un hall d'entrée, une buanderie, une cuisine, une salle à manger, un salon agrémenté d'une superbe cheminée en pierre,une véranda et un garage. Au premier étage, vous bénéficierez de quatre chambres ainsi qu'une salle d'eau avec bain et douche fraîchement aménagée avec des matériaux de haute qualité. Un grenier est également disponible et totalement aménageable permettant d'augmenter le potentiel de l'habitation. Le bien dispose de deux caves offrant des espaces de rangement complémentaires. Faire offre à partir de 320 000 €. Opportunité unique dans la région!
Général
- Type de bien : Maison
- Condition : bon état
- Disponibilité : à l'acte
- Jardin :
- Jardin : 1130 m²
- Façade(s) : 4
- Étage : 1
Intérieur
- Cuisine : Oui
- Buanderie : 5 m²
- Nbre de toilette(s) : 2
- Véranda : Oui
- Chambre 1 : 18 m²
- Chambre 2 : 12 m²
- Chambre 3 : 13 m²
- Chambre 4 : 6 m²
- Ascenseur : Non
- Double vitrage : Oui
- égouts : Oui
- électricité : Oui
- Salle de séjour : 18 m²
- Salle à manger : 11 m²
- Cuisine : 14 m²
- Caves : 18 m²
- Chauffage : mazout (chauf. centr.)
- Type de cuisine : semi-équipée
- Télévision par cable : Oui
- Câbles téléphoniques : Oui
- Eau : Oui
- Grenier : Oui
- Cave : Oui
- Feu ouvert : Oui
Extérieur
- Année de construction : 1918
- Nombre d'étages : 1
- Nombre de garage : 1
- Châssis : bois ou pvc
- Type de toit : en pente
- Fosse septique : Oui
- Nombre de parking : 2
Terrain et environs
- Magasins : 2247 m
- écoles : 1908 m
- Transports en commun : 100 m
- Type d'environnement : calme
- Magasins : Oui
- Ecoles : Oui
- Transports en commun : Oui
- Autoroute : 9800 m
- Gare : 7100 m
- Risque d'inondation : pas situé en zone inondable
Certificats / Attestations
- Certificat d'électricité : oui, non conforme
Energie
- Label PEB : E
- PEB E-SPEC (kwh/m²/an) : 422
- Emission CO2 : 105
- E total : 76084 kWh/an
- PEB code unique : 20200618021418
Contact
Ce bien vous intéresse ? Contactez-nous via notre formulaire ou par téléphone.
Retour au listingCe site utilise des cookies
Nous utilisons des cookies pour assurer le bon fonctionnement du site. Vous pouvez consulter nos mentions légales et notre politique de confidentialité pour plus d'informations.































