Description
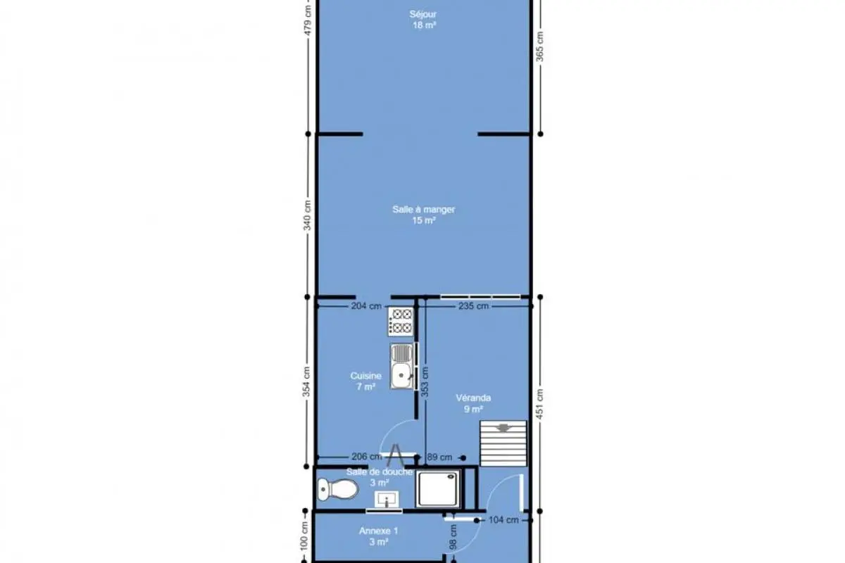
Au cœur du village de Piéton, nous vous proposons cette maison unifamiliale bénéficiant d’énormément de potentiel. Composition : au rez-de-chaussée, un salon, un grand séjour, une cuisine, la salle de douche et une buanderie. Au 1er étage, deux grandes chambres. Au dernier étage, grande chambre dans les combles pouvant être séparée. Agréable jardin avec terrasse et annexes. Possibilité d’obtenir les droits d’enregistrements réduits. Opportunité à saisir. Faire offre à partir de 110.000 euros
Général
- Type de bien : Maison
- Condition : à rafraîchir
- Disponibilité : à l'acte
- Jardin :
- Façade(s) : 2
Aspects financiers
- Revenu cadastral (€) : 267 €
Intérieur
- Cuisine : Oui
- Buanderie : Oui
- Nbre de toilette(s) : 1
- Bureau : Oui
- Chambre 1 : 18 m²
- Chambre 2 : 17 m²
- Volets : Oui
- Ascenseur : Non
- Double vitrage : Oui
- égouts : Oui
- électricité : Oui
- Nbre de terrasse(s) : 1
- Salle de séjour : 33 m²
- Chauffage : gaz
- Télévision par cable : Oui
- Gaz : Oui
- Câbles téléphoniques : Oui
- Eau : Oui
- Grenier : Oui
- Cave : Oui
- Feu ouvert : Oui
Extérieur
- Nombre d'étages : 2
- Atelier : Oui
- Annexe : Oui
- Châssis : pvc
- Surface de terrasse 1 : 22 m²
Terrain et environs
- Type d'environnement : central
- Magasins : Oui
- Ecoles : Oui
- Transports en commun : Oui
- Centre sportif : Oui
- Autoroute : Oui
- Gare : Oui
Energie
- Label PEB : F
- PEB E-SPEC (kwh/m²/an) : 456
- Emission CO2 : 83
- E total : 54135 kWh/an
- PEB code unique : 20200715012099
Contact
Ce bien vous intéresse ? Contactez-nous via notre formulaire ou par téléphone.
Retour au listingCe site utilise des cookies
Nous utilisons des cookies pour assurer le bon fonctionnement du site. Vous pouvez consulter nos mentions légales et notre politique de confidentialité pour plus d'informations.

















