Vendu
Maison - 7180 Seneffe
faire offre à partir de 270.000 €
Référence : 4105189
Description
Magnifique fermette érigée sur un terrain de 80 ares avec bois et vue exceptionnelle à l'arrière sur les champs. Elle se compose d'un hall d'entrée avec espace buanderie, wc et salle de bain, salon, salle à manger, cuisine équipée, un bureau ou une chambre. A l'étage. Petites caves voûtées. Faire offre à partir de 270 000 €
Général
- Type de bien : Maison
- Condition : bon état
- Disponibilité : à l'acte
- Jardin :
- Jardin : 8000 m²
- Façade(s) : 4
Intérieur
- Nbre de toilette(s) : 1
- Nombre de sdd : 1
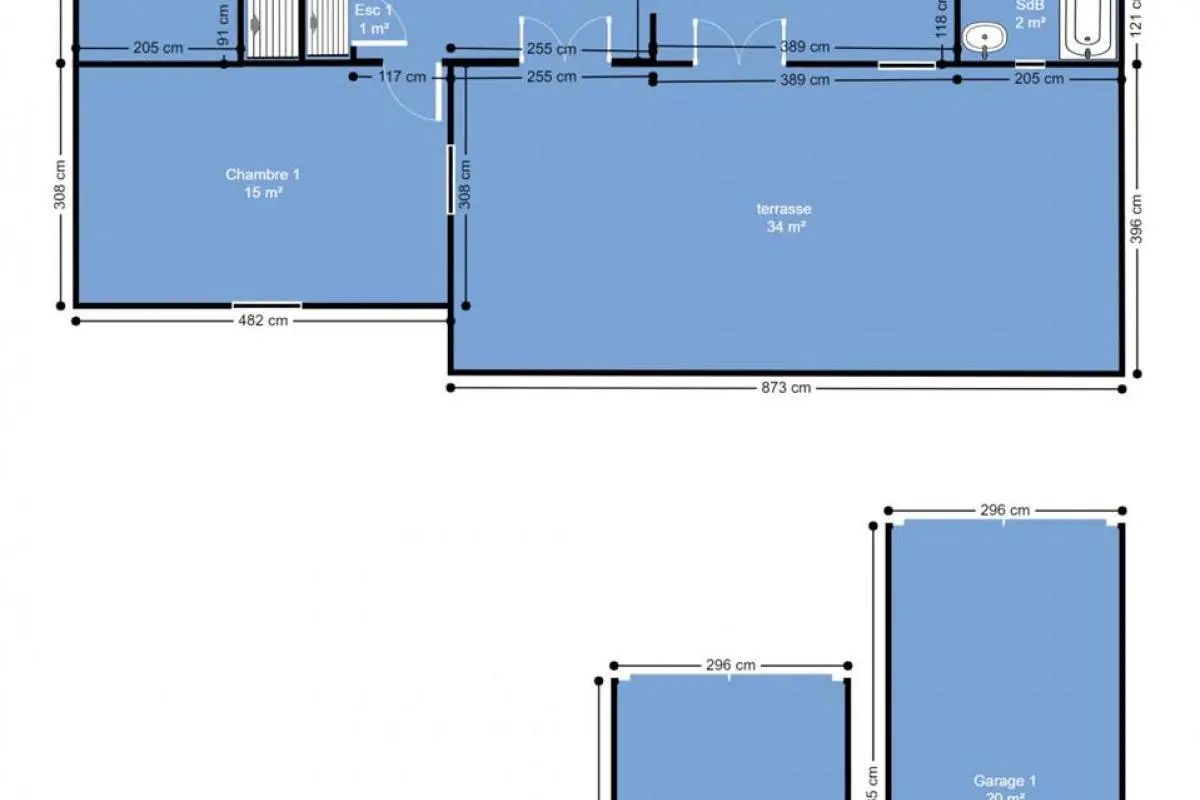
- Chambre 1 : 15 m²
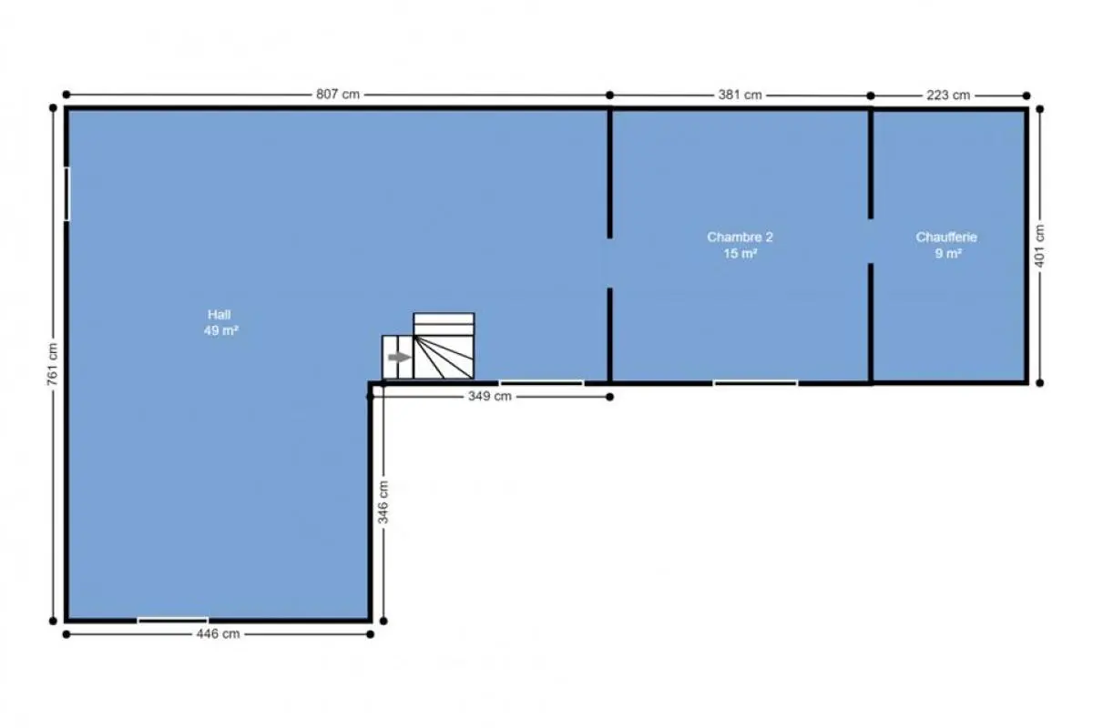
- Chambre 2 : 14 m²
- Ascenseur : Non
- Chauffage : mazout (chauf. centr.)
- Type de cuisine : semi-équipée
Extérieur
- Surface de terrasse 1 : 35 m²
Terrain et environs
- Type d'environnement : campagne
Certificats / Attestations
- Certificat d'électricité : non
Energie
- Label PEB : C
- PEB E-SPEC (kwh/m²/an) : 206
- Emission CO2 : 52
- E total : 28523 kWh/an
- PEB code unique : 20200808003923
Contact
Ce bien vous intéresse ? Contactez-nous via notre formulaire ou par téléphone.
Retour au listingCe site utilise des cookies
Nous utilisons des cookies pour assurer le bon fonctionnement du site. Vous pouvez consulter nos mentions légales et notre politique de confidentialité pour plus d'informations.
Accepter les cookies
Paramétrer les cookies





































