Description
Splendide appartement de +/- 110 m² situé dans une copropriété située à proximité directe du centre de Nivelles et de toutes ses facilités telles que les écoles, les transports en commun, les commerces, … Le bien vous séduira par son état d’entretien irréprochable. Il se compose d’un hall d’entrée avec WC séparé, une cuisine super équipée, d’un spacieux et lumineux living de 35 m², d’un hall de nuit desservant 3 chambres et une salle de bain avec douche à l’italienne. 3 terrasses privatives. Aucuns travaux à prévoir. La cuisine, les châssis et la salle de bain sont neufs. Opportunité unique à saisir !
Général
- Type de bien : Appartement
- Condition : excellent état
- Disponibilité : à l'acte
- Jardin :
- Façade(s) : 4
- Étage : 1
Aspects financiers
- Permis de bâtir : Oui
- Revenu cadastral (€) : 1286 €
Intérieur
- Accès handicapés : Oui
- Cuisine : Oui
- Buanderie : Oui
- Nbre de cave(s) : 1
- Nbre de toilette(s) : 1
- Bureau : Oui
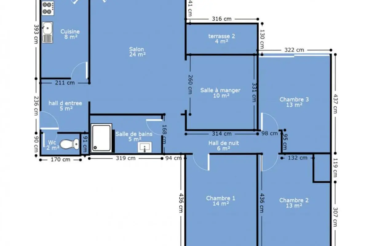
- Chambre 1 : 14 m²
- Chambre 2 : 13 m²
- Chambre 3 : 13 m²
- Ascenseur : Oui
- égouts : Oui
- électricité : Oui
- Nbre de terrasse(s) : 3
- Salle de séjour : 35 m²
- Cuisine : 9 m²
- Chauffage : gaz (chau. centr.)
- Type de cuisine : super-équipée
- Gaz : Oui
- Parlophone : Oui
- Câbles téléphoniques : Oui
- Porte blindée : Oui
- Videophone : Oui
- Eau : Oui
- Cave : Oui
- Détecteur incendie : Oui
Extérieur
- Année de construction : 1974
- Nombre d'étages : 10
- Châssis : aluminium
Terrain et environs
- Type d'environnement : commerce
- Magasins : Oui
- Ecoles : Oui
- Transports en commun : Oui
- Centre sportif : Oui
- Autoroute : Oui
- Gare : Oui
- Risque d'inondation : pas situé en zone inondable
Energie
- Label PEB : E
- PEB E-SPEC (kwh/m²/an) : 348
- Emission CO2 : 64
- E total : 40033 kWh/an
- PEB code unique : 20200920004328
Contact
Ce bien vous intéresse ? Contactez-nous via notre formulaire ou par téléphone.
Retour au listingCe site utilise des cookies
Nous utilisons des cookies pour assurer le bon fonctionnement du site. Vous pouvez consulter nos mentions légales et notre politique de confidentialité pour plus d'informations.












