Description
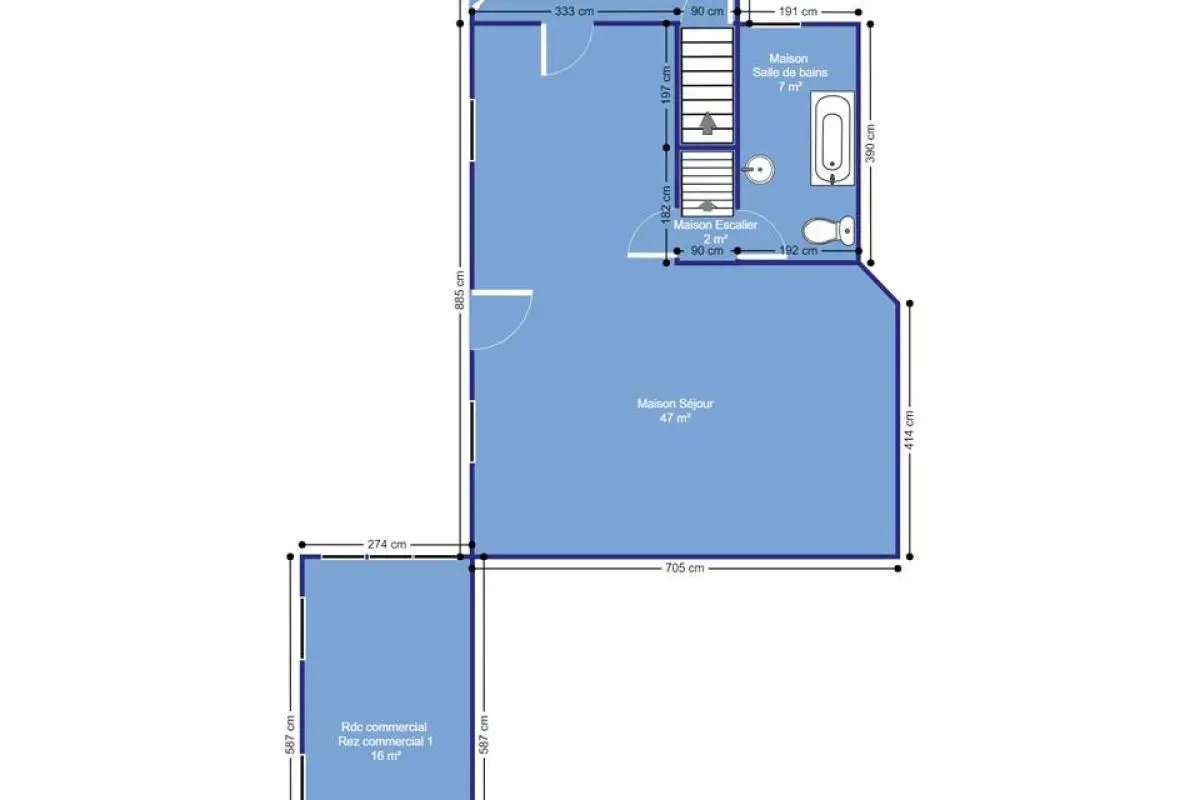
Au cœur du village de Houtain-le-Val, agréable fermette entièrement repeinte érigée sur un terrain de 480m² située dans une rue à faible passage. La terrasse plein sud ainsi que son jardin égayeront vos étés. la fermette se compose comme suit cuisine, séjour en L, une chaufferie, 3 chambres, une salle de bains rénovée et une salle de douches. 3 emplacements de parking privatifs devant la maison ainsi qu’une cave de 15m² complètent la visite. En option louable pour 400 € par mois, une annexe avec accès indépendant aménagée en espace professionnel qui se compose d’un hall d’entrée, un WC séparé, une salle d’attente et une salle de consultation/bureau.
Général
- Type de bien : Maison
- Condition : bon état
- Disponibilité : immédiatement
- Jardin :
- Façade(s) : 3
Aspects financiers
- Revenu cadastral (€) : 737 €
- Affectation urbanistique : parc d'habitat
Intérieur
- Accès handicapés : Oui
- Cuisine : Oui
- Buanderie : Oui
- Nbre de toilette(s) : 2
- Nombre de sdd : 1
- Bureau : Oui
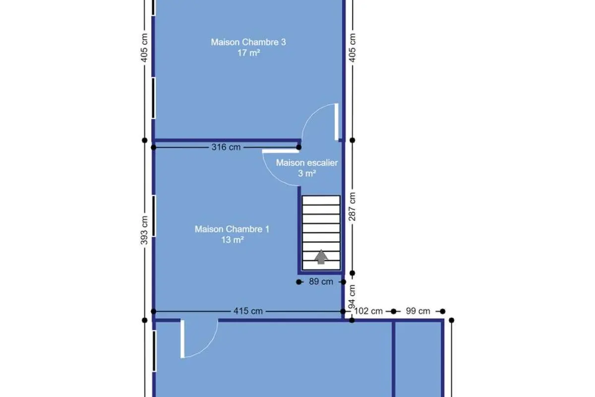
- Chambre 1 : 25 m²
- Chambre 2 : 17 m²
- Chambre 3 : 14 m²
- Ascenseur : Non
- Double vitrage : Oui
- égouts : Oui
- électricité : Oui
- Nbre de terrasse(s) : 1
- Salle de séjour : 47 m²
- Cuisine : 18 m²
- Chauffage : mazout (chauf. centr.)
- Possibilité profession libérale : 25 m²
- Orientation de la terrasse 1 : sud
- Télévision par cable : Oui
- Câbles téléphoniques : Oui
- Eau : Oui
- Cave : Oui
Extérieur
- Nombre d'étages : 1
- Année de rénovation : 2012
- Châssis : pvc
- Nombre de parking : 4
Terrain et environs
- Type d'environnement : calme
- Exposition de la façade avant : sud
- Magasins : Oui
- Ecoles : Oui
- Transports en commun : Oui
- Centre sportif : Oui
- Autoroute : Oui
- Gare : Oui
- Orientation de la terrasse : sud
- Orientation du jardin : sud
Certificats / Attestations
- Certificat d'électricité : oui, conforme
Energie
- Label PEB : F
- PEB E-SPEC (kwh/m²/an) : 460
- Emission CO2 : 114
- E total : 90187 kWh/an
- PEB code unique : 20181104004977
Contact
Ce bien vous intéresse ? Contactez-nous via notre formulaire ou par téléphone.
Retour au listingCe site utilise des cookies
Nous utilisons des cookies pour assurer le bon fonctionnement du site. Vous pouvez consulter nos mentions légales et notre politique de confidentialité pour plus d'informations.

























