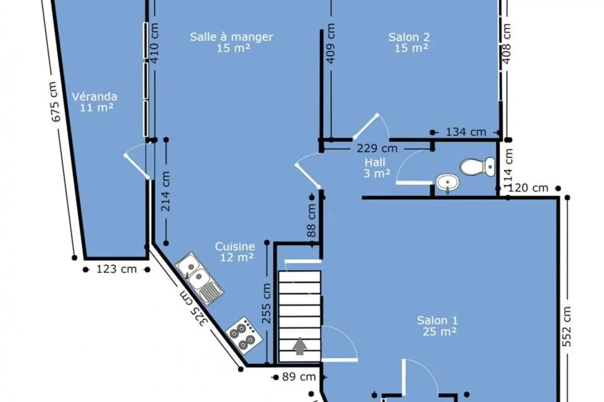
Description
** SOUS-OPTION ** Dans le centre-ville de Seneffe, nous vous proposons cette spacieuse maison unifamiliale en parfait état. Elle se compose comme suit, un hall d’entrée, un salon ou bureau, un second salon, une salle-à-manger, une cuisine équipée, une véranda et un WC séparé. Au 1er étage, un hall de nuit desservant 4 chambres et une salle de bain. Au second étage, un splendide grenier de 90m² pouvant être aménagé. Cave sous la maison. Conformité électrique. Aucuns travaux à prévoir. Possibilité d’obtenir les droits d’enregistrements réduits. N’hésitez plus et contactez-nous pour une visite.
Général
- Type de bien : Maison
- Condition : excellent état
- Disponibilité : à l'acte
- Jardin :
- Façade(s) : 2
Aspects financiers
- Revenu cadastral (€) : 701 €
Intérieur
- Cuisine : Oui
- Buanderie : Oui
- Nbre de cave(s) : 3
- Nbre de toilette(s) : 2
- Véranda : Oui
- Bureau : Oui
- Chambre 1 : 27 m²
- Chambre 2 : 20 m²
- Chambre 3 : 17 m²
- Chambre 4 : 16 m²
- Ascenseur : Non
- Double vitrage : Oui
- égouts : Oui
- Téléphone : Oui
- électricité : Oui
- Salle de séjour : 40 m²
- Salle à manger : 16 m²
- Cuisine : 12 m²
- Salle de bain 1 : 8 m²
- Caves : 32 m²
- Grenier : 90
- Chauffage : gaz (chau. centr.)
- Type de cuisine : équipée
- Télévision par cable : Oui
- Gaz : Oui
- Câbles téléphoniques : Oui
- Eau : Oui
- Grenier : Oui
- Cave : Oui
- Télévision : Oui
Extérieur
- Nombre d'étages : 2
- Châssis : pvc
Terrain et environs
- Type d'environnement : centre ville
- Magasins : Oui
- Ecoles : Oui
- Transports en commun : Oui
- Centre sportif : Oui
- Autoroute : Oui
- Gare : Oui
- Risque d'inondation : pas situé en zone inondable
Energie
- Label PEB : E
- PEB E-SPEC (kwh/m²/an) : 374
- Emission CO2 : 69
- E total : 77373 kWh/an
- PEB code unique : 20200708023938
Contact
Ce bien vous intéresse ? Contactez-nous via notre formulaire ou par téléphone.
Retour au listingCe site utilise des cookies
Nous utilisons des cookies pour assurer le bon fonctionnement du site. Vous pouvez consulter nos mentions légales et notre politique de confidentialité pour plus d'informations.
















