Description
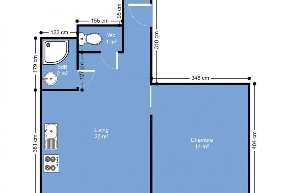
A un jet de pierre de la Grand Place de Nivelles, agréable studio tout confort avec une chambre séparée situé au dernier étage d’une petite copropriété avec ascenseur. Celui-ci développe une superficie habitable de 40m² et à l’avantage d’être habitable directement. Il se compose comme suit, un hall d’entrée, un séjour avec cuisine super-équipée, une salle de douche, un WC et une chambre séparée. Idéal pour personne seule ou jeune couple. Studio non meublé. Opportunité unique à saisir.
Général
- Type de bien : Studio
- Condition : excellent état
- Disponibilité : en fonct. du locataire
- Jardin :
Aspects financiers
- Charges locataire : 120 €
- Affectation urbanistique : zone d'habitat
Intérieur
- Accès handicapés : Oui
- Cuisine : Oui
- Nbre de toilette(s) : 1
- Chambre 1 : 14 m²
- Ascenseur : Oui
- Double vitrage : Oui
- électricité : Oui
- Salle de séjour : 21 m²
- Chauffage : gaz (chau. centr.)
- Type d'ascenseur : personnes
- Type de cuisine : super-équipée
- Gaz : Oui
- Parlophone : Oui
- Câbles téléphoniques : Oui
- Eau : Oui
- Détecteur incendie : Oui
Extérieur
- Année de rénovation : 2016
Terrain et environs
- Type d'environnement : centre ville
- Magasins : Oui
- Ecoles : Oui
- Transports en commun : Oui
- Centre sportif : Oui
- Autoroute : Oui
- Gare : Oui
- Risque d'inondation : pas situé en zone inondable
Energie
- Label PEB : G
- PEB E-SPEC (kwh/m²/an) : 611
- Emission CO2 : 112
- E total : 23021 kWh/an
- PEB code unique : 20151104023601
Contact
Ce bien vous intéresse ? Contactez-nous via notre formulaire ou par téléphone.
Retour au listingCe site utilise des cookies
Nous utilisons des cookies pour assurer le bon fonctionnement du site. Vous pouvez consulter nos mentions légales et notre politique de confidentialité pour plus d'informations.








