Description
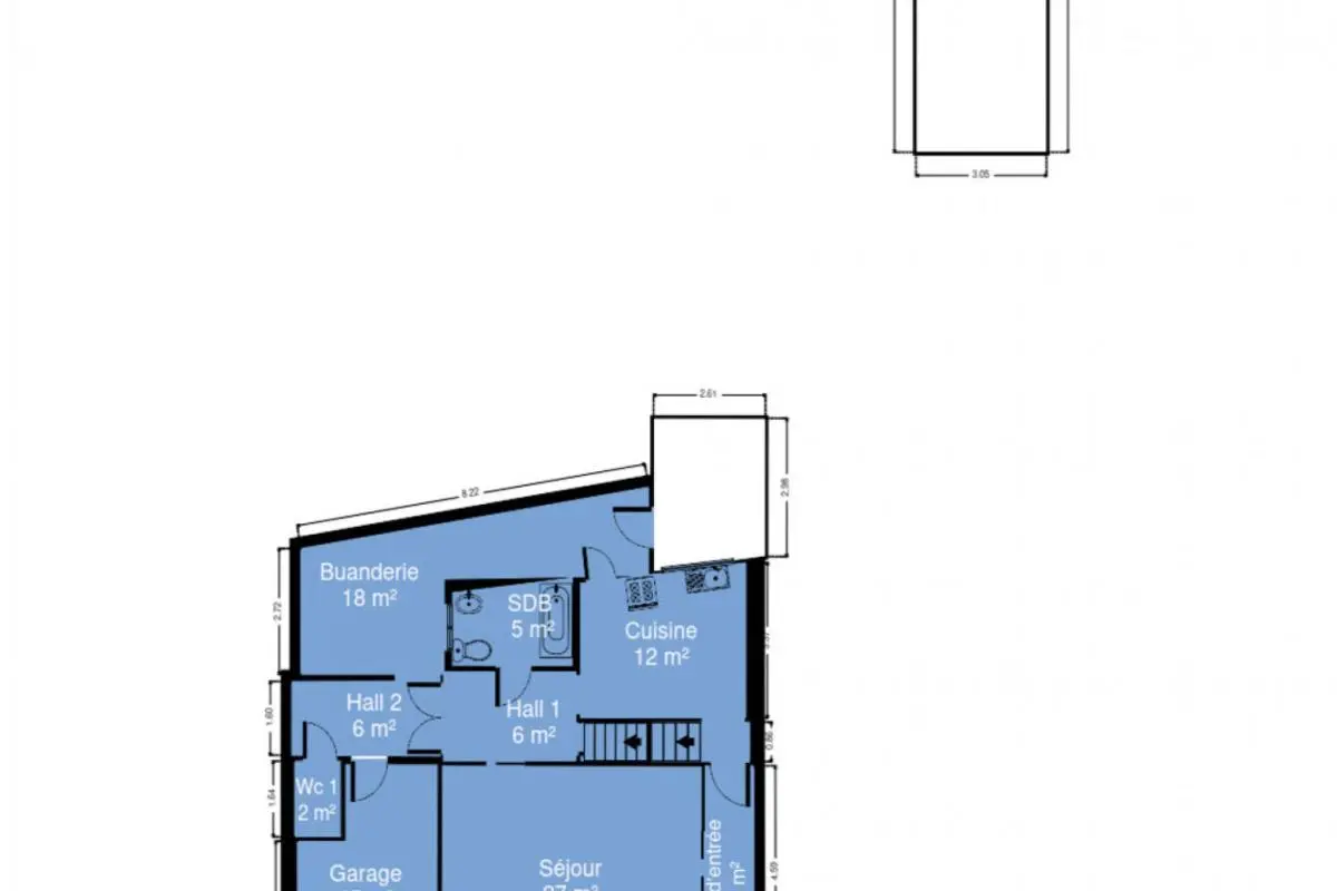
A proximité d'un centre médical, d'une pharmacie, des commerces, des crèches, d'un parc, à 3 min de l'hôpital de Gosselies, à 5 min de la gare, au cœur de la ville, tout en ayant un cadre vert et insoupçonnable, splendide maison bourgeoise parfaitement construite sur 5,80 ares. Le jardin est exceptionnel, arboré, avec un espace pour les enfants et un coin détente bien orienté pour les adultes. Au rez-de-chaussée, hall d'entrée, cuisine équipée, living, garage, wc, salle de bain. A l'étage, 4 chambres, une belle salle de douche et un bureau. Au dernier étage, 2 chambres et un grenier aménageable. Elle possède également deux caves, un spacieux garage et des facilités de parking à proximité. Faire offre à partir de 275 000 €
Général
- Type de bien : Maison unifamiliale
- Condition : bon état
- Disponibilité :
- Jardin :
- Jardin : 450 m²
- Façade(s) : 2
Aspects financiers
- Permis de bâtir : Oui
- Revenu cadastral (€) : 678 €
Intérieur
- Largeur front de rue : 11
- Surface bâtie : 130 m²
- Cuisine : Oui
- Buanderie : 17.49 m²
- Nbre de cave(s) : 2
- Nbre de grenier(s) : 1
- Nbre de toilette(s) : 2
- Nombre de sdd : 1
- Bureau : 6.92 m²
- Chambre 1 : 17.25 m²
- Chambre 2 : 17.61 m²
- Chambre 3 : 15.56 m²
- Chambre 4 : 12.22 m²
- Chambre 5 : 29.25 m²
- Chambre 6 : 25.19 m²
- Escalier nombre : 1
- Ascenseur : Non
- Hall d'entrée : Oui
- Surface nette : 221 m²
- Double vitrage : Oui
- Largeur de façade : 11
- Profondeur terrain : 63
- égouts : Oui
- électricité : Oui
- Nbre de terrasse(s) : 2
- Salle de séjour : 27.21 m²
- Cuisine : 12.12 m²
- Salle de bain 1 : 4.84 m²
- Caves : 31.45 m²
- Grenier : 24.9
- Chauffage : gaz (chau. centr.)
- Chambre 1 (revêtement de sol) : carrelages
- Chambre 5 (revêtement de sol) : quickstep
- Type de revêtement de sol : carrelages
- Hall d'entrée : 5.22 m²
- Orientation de la terrasse 1 : nord-est
- Type de cuisine : semi-équipée
- Sdb : douche
- Télévision par cable : Oui
- Gaz : Oui
- Eau : Oui
- Grenier : Oui
- Cave : Oui
- Façade avant : Brique
- Four : Oui
- Largeur terrain : 11
- Nbre de pièce(s) : 21
- Adoucisseur : Oui
Extérieur
- Nombre d'étages : 2
- Nombre de garage : 1
- Châssis : pvc
- Profondeur de garage : 5.12
- Largeur de garage : 3.26
- Jardin : nord-est, déclivité plat, aménagé pelouse, Éclairage
- Abri de jardin : Oui
Terrain et environs
- Transports en commun : 150 m
- Type d'environnement : central
- Exposition de la façade avant : sud-ouest
- Transports en commun : Oui
- Autoroute : 3400 m
- Gare : 2200 m
- Orientation du jardin : nord est
Certificats / Attestations
- Certificat d'électricité : oui, conforme
Energie
- Label PEB : C
- PEB E-SPEC (kwh/m²/an) : 210
- Emission CO2 : 41
- E total : 56738 kWh/an
- PEB code unique : 20220610025098
Contact
Ce bien vous intéresse ? Contactez-nous via notre formulaire ou par téléphone.
Retour au listingCe site utilise des cookies
Nous utilisons des cookies pour assurer le bon fonctionnement du site. Vous pouvez consulter nos mentions légales et notre politique de confidentialité pour plus d'informations.
































