Description
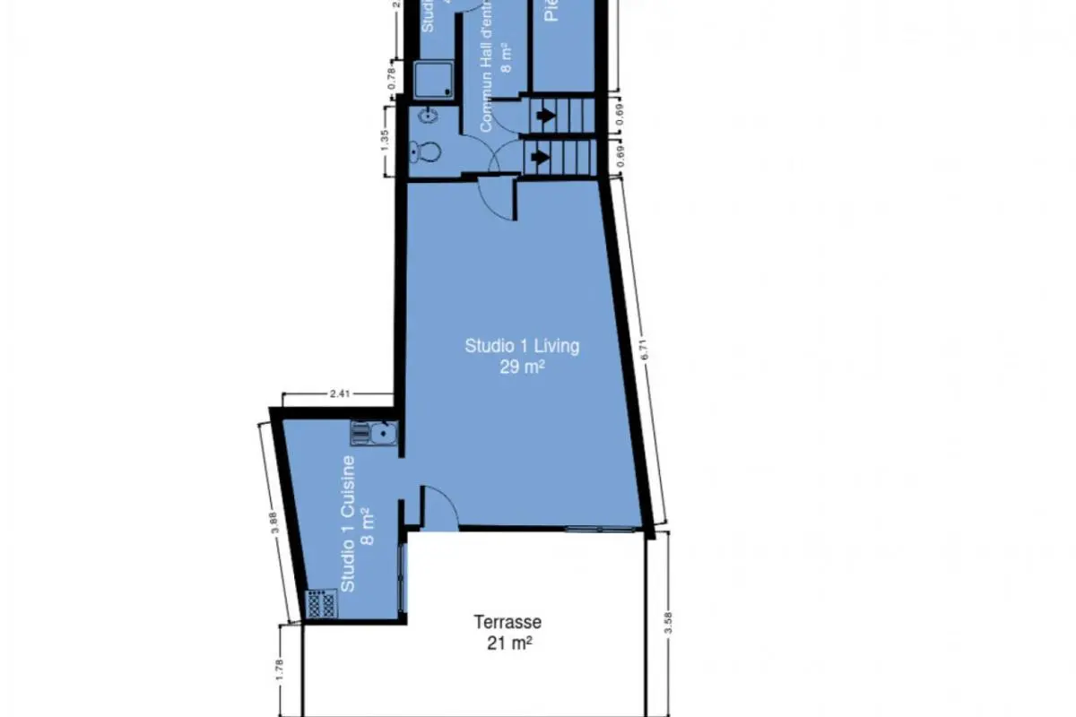
A 10 m d'un parking et une plaine communal, immeuble de rapport totalement en ordre au niveau de l'urbanisme avec permis de location comprenant 4 unités dont une avec cour extérieure privative avec abris. La toiture a 20 ans et il y a du double vitrage récents à tous les niveaux. Actuellement loué pour un montant total de 1700 € charges incluses. Gros rafraichissement, compteur de passage ou individuel à prévoir. Faire offre à partir de 175 000 €. Plus d'infos et les plans : https://www.behomepartners.be/detail.php?id=5079719
Général
- Type de bien : Immeuble à appartements
- Condition : à rafraîchir
- Disponibilité : en fonct. du locataire
- Jardin :
- Façade(s) : 2
- Étage : 1
Aspects financiers
- Revenu cad. indexé : 911 €
- Permis de bâtir : Oui
- Loué : Oui
Intérieur
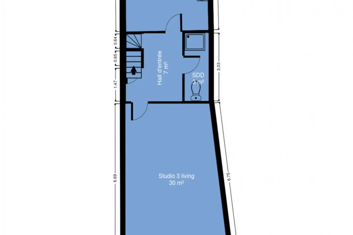
- Surface bâtie : 58 m²
- Cuisine : Prise(s) électrique(s): 4
- Nbre de cave(s) : 1
- Nbre de grenier(s) : 1
- Chauffage (ind/coll) : Chauffage partiel au sol
- Nbre de toilette(s) : 3
- Nombre de sdd : 3
- Chambre 1 : 30 m²
- Chambre 2 : 20 m²
- Chambre 3 : 13 m²
- Chambre 4 : 30 m²
- Escalier nombre : 3
- Ascenseur : Non
- Hall d'entrée : Oui
- Surface nette : 160 m²
- Double vitrage : isol. thermique et acoustique
- Largeur de façade : 5
- égouts : Oui
- Téléphone : Oui
- électricité : Oui
- Caves : 20 m²
- Chauffage : gaz
- Type de revêtement de sol : carrelages
- Type de cuisine : non-équipée
- Sdb : douche
- Télévision par cable : Oui
- Gaz : Oui
- Eau : Oui
- Grenier : Oui
- Cave : Oui
- Façade avant : Brique
- Hotte : Oui
- Nbre de pièce(s) : 15
Extérieur
- Année de construction : 1900
- Nombre d'étages : 2
- Année de rénovation : 2000
- Châssis : pvc
- Surface de terrasse 1 : 21 m²
- Abri de jardin : Oui
Terrain et environs
- Transports en commun : 30 m
- Type d'environnement : central
- Exposition de la façade avant : est
- Transports en commun : Oui
- Autoroute : 2500 m
- Gare : Oui
- Risque d'inondation : pas situé en zone inondable
Energie
- Label PEB : C
- PEB E-SPEC (kwh/m²/an) : 220
- Emission CO2 : 53
- E total : 5604 kWh/an
- PEB code unique : 20140918014354
Contact
Ce bien vous intéresse ? Contactez-nous via notre formulaire ou par téléphone.
Retour au listingCe site utilise des cookies
Nous utilisons des cookies pour assurer le bon fonctionnement du site. Vous pouvez consulter nos mentions légales et notre politique de confidentialité pour plus d'informations.




















