Description
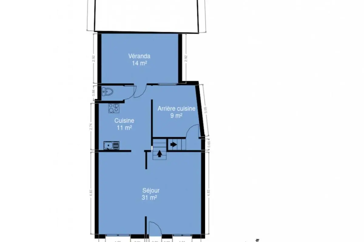
Situation idyllique avec vue sur les champs tant à l'avant qu'à l'arrière, cette splendide maison 3 façades n'attends que son nouveau propriétaire. Au rez-de-chaussée, belle devanture avec petite étang, salon, salle à manger, cuisine équipée, arrière cuisine comprenant cellier, espace machine à laver, séchoir. Cave de rangement contenant la chaudière au mazout. A l'étage, deux chambres, un espace bureau utilisé en chambre, grenier de rangement. Facilité de parking dans la rue. Possibilité d'obtention des frais d'enregistrement réduits sous condition. RC 363 €. Faire offre à 235 000 €
Général
- Type de bien : Maison
- Condition : bon état
- Disponibilité : à l'acte
- Jardin :
- Jardin : 176 m²
- Façade(s) : 3
Aspects financiers
- Permis de bâtir : Oui
- Revenu cadastral (€) : 363 €
- Affectation urbanistique : zone d'habitat rurale
Intérieur
- Largeur front de rue : 10
- Surface bâtie : 95 m²
- Cuisine : Oui
- Nbre de cave(s) : 1
- Chauffage (ind/coll) : individuel
- Nbre de toilette(s) : 2
- Véranda : Oui
- Bureau : 7.71 m²
- Lave-vaisselle : Oui
- Chambre 1 : 14.07 m²
- Chambre 2 : 12.33 m²
- Chambre 3 : 10 m²
- Ascenseur : Non
- Surface nette : 117 m²
- Double vitrage : isol. thermique et acoustique
- Largeur de façade : 7
- Profondeur terrain : 50
- Téléphone : Oui
- électricité : Oui
- Nbre de terrasse(s) : 1
- Salle de séjour : 30.97 m²
- Cuisine : 10.79 m²
- Salle de bain 1 : 6.31 m²
- Caves : 10.3 m²
- Chauffage : mazout (chauf. centr.)
- Marque de lave-vaisselle : de la marque Siemens
- Type de revêtement de sol : carrelages
- Orientation de la terrasse 1 : sud-ouest
- Type de cuisine : équipée
- Sdb : douche dans le bain
- Câbles téléphoniques : Oui
- Eau : Oui
- Grenier : Oui
- Cave : Oui
- Hall de nuit : Oui
- Hall de nuit : 4.7 m²
- Détecteur incendie : Oui
- Façade avant : Brique
- Frigo : Oui
- Four : Oui
- Hotte : Oui
- Largeur terrain : 10
- Nbre de pièce(s) : 11
Extérieur
- Nombre d'étages : 1
- Châssis : bois
- Surface de terrasse 1 : 35 m²
- Jardin : sud-ouest, plat, aménagé pelouse, Fermé
- Fosse septique : Oui
- Abri de jardin : Oui
Terrain et environs
- Transports en commun : 800 m
- Type d'environnement : calme
- Exposition de la façade avant : nord-est
- Transports en commun : Oui
- Autoroute : 1900 m
- Gare : 3400 m
- Orientation de la terrasse : sud ouest
- Orientation du jardin : sud ouest
- Risque d'inondation : pas situé en zone inondable
Certificats / Attestations
- Capacité de la citerne à mazout : 2500
- Certificat d'électricité : non
Energie
- PEB E-SPEC (kwh/m²/an) : 296
- Emission CO2 : 75
- E total : 38629 kWh/an
- PEB code unique : 20240710007549
- PEB valide jusqu'au : 07/10/2034 00:00
- Date du PEB : 07/10/2024 00:00
Contact
Ce bien vous intéresse ? Contactez-nous via notre formulaire ou par téléphone.
Retour au listingCe site utilise des cookies
Nous utilisons des cookies pour assurer le bon fonctionnement du site. Vous pouvez consulter nos mentions légales et notre politique de confidentialité pour plus d'informations.
























