Description
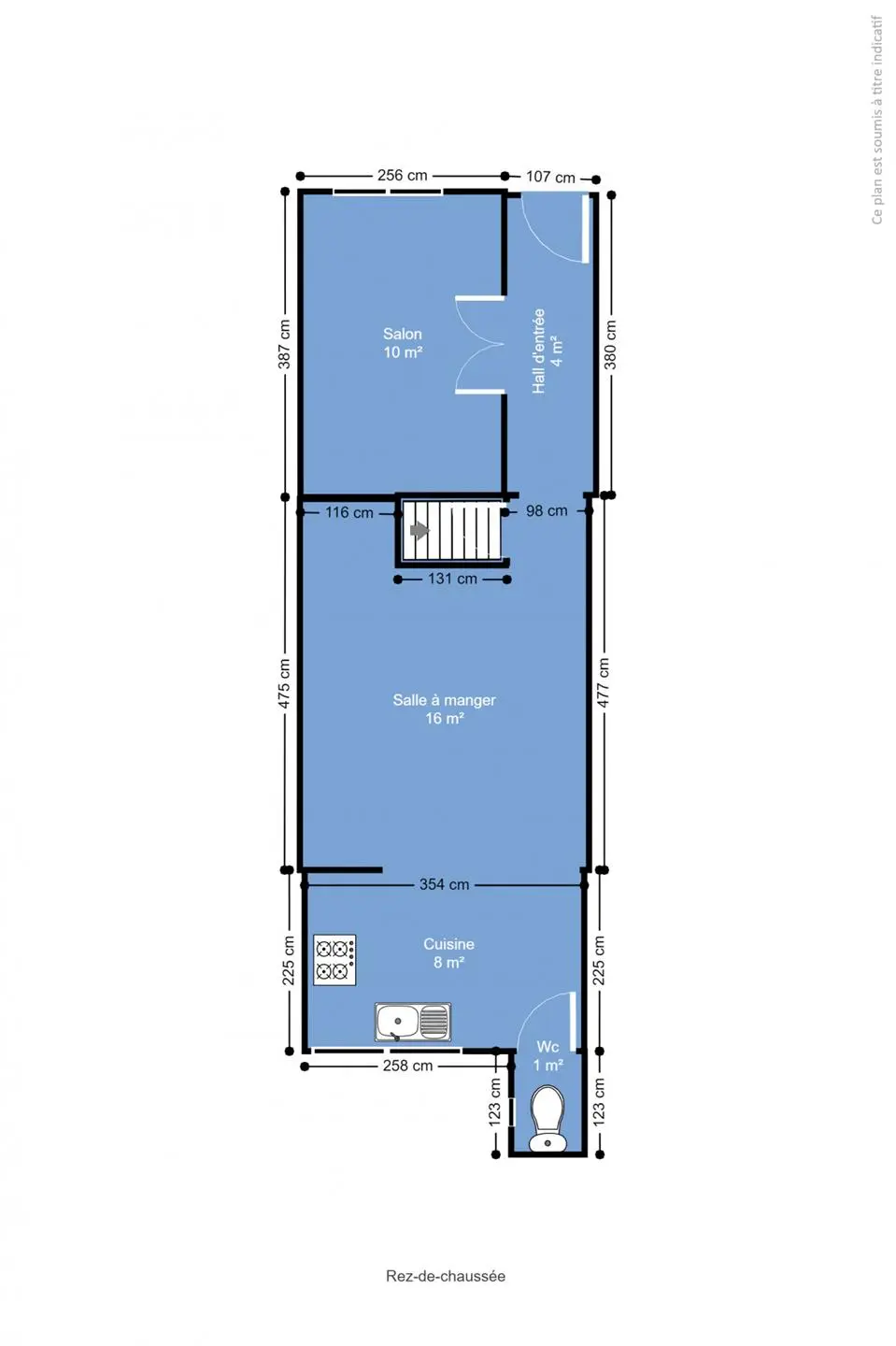
Parfaitement située par rapport aux axes de communication tout en étant au calme, nous vous proposons en exclusivité cette magnifique maison partiellement rénovée offrant tout le confort moderne (panneaux photovoltaïques sur la maison et sur le garage, borne électrique dans le garage avec porte électrique sectionnelle, électricité conforme, nouvelle chaudière vaillant, adoucisseur d'eau, Poêle à Pellets, BATTERIE). Possédant un PEB B, cette habitation vous propose une très faible consommation énergétique. Elle se compose, au rez-de-chaussée, d'un hall desservant un salon, une salle à manger ouverte sur la cuisine et un WC séparé. Au premier étage, vous bénéficierez d'une chambre, d'un espace bureau, d'une salle de douche et d'un WC séparé. Au deuxième étage, le grenier à été aménagé en deux vastes chambres. Le bien dispose également de spacieuses caves contenant la buanderie, la chaudière et l'accès au jardin. La fibre est installée dans la rue. Faire offre à partir de 160 000 €
Général
- Type de bien : Maison
- Condition : Bon état
- Disponibilité : à l'acte
- Jardin :
- Façade(s) : 2
- Étage : 1
Aspects financiers
- Revenu cadastral (€) : 386 €
Intérieur
- Cuisine : Oui
- Buanderie : 17 m²
- Nbre de toilette(s) : 2
- Nombre de sdd : 1
- Chambre 1 : 14 m²
- Chambre 2 : 15 m²
- Chambre 3 : 14 m²
- Ascenseur : Non
- Double vitrage : Oui
- égouts : Oui
- électricité : Oui
- Nbre de terrasse(s) : 1
- Salle de séjour : 16 m²
- Salle à manger : 10 m²
- Cuisine : 8 m²
- Caves : 23 m²
- Chauffage : gaz (chau. centr.)
- Orientation de la terrasse 1 : est
- Type de cuisine : semi-équipée
- Télévision par cable : Oui
- Gaz : Oui
- Câbles téléphoniques : Oui
- Eau : Oui
- Grenier : Oui
- Cave : Oui
Extérieur
- Année de construction : 1875
- Nombre d'étages : 2
- Nombre de garage : 1
- Année de rénovation : 2013
- Châssis : pvc
- Surface de terrasse 1 : 15 m²
- Type de toit : en pente
- Panneaux solaires : 10
- Nombre de parking : 2
Terrain et environs
- Magasins : 191 m
- écoles : 179 m
- Transports en commun : 150 m
- Type d'environnement : central
- Exposition de la façade avant : ouest
- Magasins : Oui
- Ecoles : Oui
- Transports en commun : Oui
- Centre sportif : Oui
- Autoroute : 1500 m
- Gare : 300 m
- Orientation du jardin : est
- Risque d'inondation : pas situé en zone inondable
Certificats / Attestations
- Certificat d'électricité : oui, conforme
Certificats énergétiques
- Label PEB : B
- PEB E-SPEC (kwh/m²/an) : 137
- E total : 20200 kWh/an
- PEB code unique : 20250904023264
- PEB valide jusqu'au : 09/04/2035 00:00
- Date du PEB : 09/04/2025 00:00
Contact
Ce bien vous intéresse ? Contactez-nous via notre formulaire ou par téléphone.
Retour au listingCe site utilise des cookies
Nous utilisons des cookies pour assurer le bon fonctionnement du site. Vous pouvez consulter nos mentions légales et notre politique de confidentialité pour plus d'informations.



















