
Description
Hoeilaart – Hoge-Heide / Centre , nous vous proposons en exclusivité cette charmante maison 3 façades avec terrasse, jardin, passage latéral permettant la construction d'un carport. Située dans un cadre verdoyant et paisible, cette élégante maison offre 5 chambres et 1 salle de bain. Elle se compose au Rez-de-chaussée Hall d’entrée en carrelage, spacieuses réceptions avec parquet laminé, poêle à pellets et belle hauteur sous plafond, cuisine équipée et rénovée, avec coin déjeuner donnant sur la terrasse, Buanderie, toilette, espace de rangement et espace chaufferie comprenant les compteurs. A l'étage, hall de nuit, trois grandes chambres en parquet laminé, salle de bains complète : baignoire, douche, double lavabo, meuble de rangement, ventilation, toilette, radiateur sèche-serviettes, spots intégrés. Au second étage, hall de nuit et deux grandes chambres, dont une idéale pour un bureau. Au sous-sol, cave de rangement et débarras. Au niveau technique, le bien été rénové en 2013, avec améliorations ultérieures ✅ Chauffage central au gaz avec chaudière à condensation 2023, ✅ PEB D – 363 kWh/m²/an , ✅ Électricité conforme jusqu’en 2038 ,✅ Châssis PVC double vitrage (2013) ✅ Raccordement à l’égout et au gaz de ville. Faire offre à partir de 569000 €
Général
- Type de bien : Maison
- Condition : Bon état
- Disponibilité : immédiatement
- Jardin :
- Façade(s) : 3
Aspects financiers
- Revenu cad. indexé : 1234 €
Intérieur
- Largeur front de rue : 9
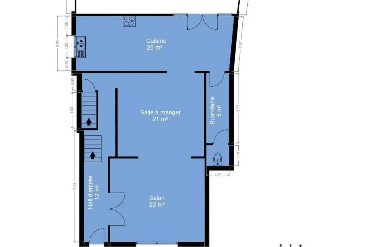
- Surface bâtie : 111 m²
- Salle à manger : Oui
- Cuisine : Oui
- Buanderie : 4.59 m²
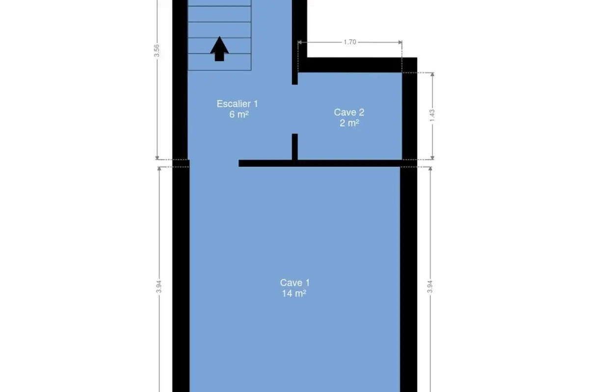
- Nbre de cave(s) : 2
- Chauffage (ind/coll) : individuel
- Nbre de toilette(s) : 3
- Lave-vaisselle : Oui
- Chambre 1 : 27 m²
- Chambre 2 : 35 m²
- Chambre 3 : 16 m²
- Chambre 4 : 16 m²
- Chambre 5 : 8 m²
- Ascenseur : Non
- Hall d'entrée : Oui
- Surface nette : 217 m²
- Double vitrage : Oui
- Largeur de façade : 9
- Profondeur terrain : 29
- égouts : Oui
- électricité : Oui
- Nbre de terrasse(s) : 1
- Salle à manger : 20.86 m²
- Cuisine : 24.72 m²
- Salle de bain 1 : 10.69 m²
- Caves : 16.01 m²
- Chauffage : condensation
- Marque de lave-vaisselle : Siemens
- Type de revêtement de sol : carrelages
- Hall d'entrée : 11.92 m²
- Type de cuisine : super-équipée
- Sdb : douche et bain
- Alarme : Oui
- Télévision par cable : Oui
- Gaz : Oui
- Eau : Oui
- Cave : Oui
- Hall de nuit : Oui
- Hall de nuit : 8.18 m²
- Façade avant : Crépis
- Frigo : Oui
- Four : Oui
- Hotte : Oui
- Largeur terrain : 9
- Nbre de pièce(s) : 16
Extérieur
- Nombre d'étages : 2
- Année de rénovation : 2013
- Châssis : pvc
- Surface de terrasse 1 : 30 m²
- Jardin : nord-ouest, plat, Aménagé pelouse, fermé
- Nombre de parking : 4
Terrain et environs
- Transports en commun : 50 m
- Type d'environnement : zone d'habitation
- Exposition de la façade avant : sud-est
- Transports en commun : Oui
- Autoroute : 2200 m
- Gare : 2900 m
- Orientation de la terrasse : nord ouest
- Orientation du jardin : nord ouest
Certificats / Attestations
- Certificat d'électricité : oui, conforme
Energie
- Label PEB : D
- PEB E-SPEC (kwh/m²/an) : 363
- Emission CO2 : 16421
- E total : 95772 kWh/an
- PEB code unique : 20250106-0003455267
- PEB valide jusqu'au : 01/06/2035 00:00
- Date du PEB : 04/06/2025 00:00
Contact
Ce bien vous intéresse ? Contactez-nous via notre formulaire ou par téléphone.
Retour au listingCe site utilise des cookies
Nous utilisons des cookies pour assurer le bon fonctionnement du site. Vous pouvez consulter nos mentions légales et notre politique de confidentialité pour plus d'informations.