Description
Situé dans une petite copropriété bien entretenue et à faibles charges, cet appartement en excellent état est prêt à vous accueillir sans travaux. Vous apprécierez sa situation idéale, à proximité immédiate des commerces, des transports et de toutes les commodités du quotidien. L’appartement se compose de pièces lumineuses et bien agencées, offrant un cadre de vie agréable. Une cave privative vient compléter ce bien, idéale pour du rangement supplémentaire. Un bien rare sur le secteur – à visiter sans tarder !
Général
- Type de bien : Appartement
- Condition : Bon état
- Disponibilité : à l'acte
- Jardin :
- Façade(s) : 2
Intérieur
- Cuisine : Oui
- Nbre de cave(s) : 1
- Nbre de toilette(s) : 1
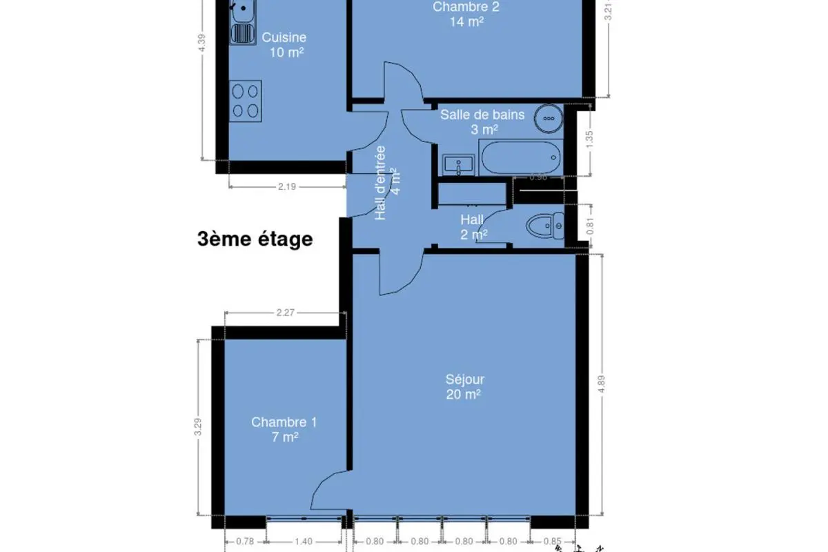
- Chambre 1 : 14 m²
- Chambre 2 : 8 m²
- Double vitrage : Oui
- égouts : Oui
- électricité : Oui
- Salle de séjour : 21 m²
- Cuisine : 10 m²
- Chauffage : mazout (chauf. centr.)
- Gaz : Oui
- Parlophone : Oui
- Câbles téléphoniques : Oui
- Porte blindée : Oui
- Eau : Oui
- Cave : Oui
Extérieur
- Nombre d'étages : 3
- Châssis : pvc
Terrain et environs
- Type d'environnement : zone d'habitation
- Exposition de la façade avant : sud-est
- Magasins : Oui
- Ecoles : Oui
- Transports en commun : Oui
- Centre sportif : Oui
- Autoroute : Oui
- Gare : Oui
- Risque d'inondation : pas situé en zone inondable
Energie
- Label PEB : G
- PEB E-SPEC (kwh/m²/an) : 631
- Emission CO2 : 162
- E total : 46275 kWh/an
- PEB code unique : 20200115-0000563250-01-0
- PEB valide jusqu'au : 01/15/2030 00:00
- Date du PEB : 01/15/2020 00:00
Contact
Ce bien vous intéresse ? Contactez-nous via notre formulaire ou par téléphone.
Retour au listingCe site utilise des cookies
Nous utilisons des cookies pour assurer le bon fonctionnement du site. Vous pouvez consulter nos mentions légales et notre politique de confidentialité pour plus d'informations.












