Description
À vendre : belle maison familiale en parfait état, idéale pour une profession libérale. Située dans un environnement calme et agréable, cette propriété offre de beaux volumes et un agencement fonctionnel. Elle comprend cinq chambres, un bureau, de lumineuses pièces de vie et des prestations de qualité. Un ascenseur permet d’accéder facilement au premier étage, et un grand parking privatif assure un stationnement aisé pour plusieurs véhicules. Équipée de panneaux photovoltaïques, la maison allie confort moderne et économies d’énergie. Parfaitement entretenue, elle ne nécessite aucun travaux. Un bien rare, offrant la possibilité d’allier vie familiale et activité professionnelle dans un cadre agréable et pratique. À découvrir sans tarder.
Général
- Type de bien : Maison
- Condition : Bon état
- Disponibilité : à l'acte
- Jardin :
- Jardin : 255 m²
- Façade(s) : 3
Intérieur
- Accès handicapés : Oui
- Largeur front de rue : 11
- Surface bâtie : 160 m²
- Cuisine : Oui
- Buanderie : 8 m²
- Nbre de dressing(s) : 1
- Nbre de cave(s) : 1
- Nbre de grenier(s) : 1
- Nbre de toilette(s) : 2
- Bureau : 15 m²
- Lave-vaisselle : Oui
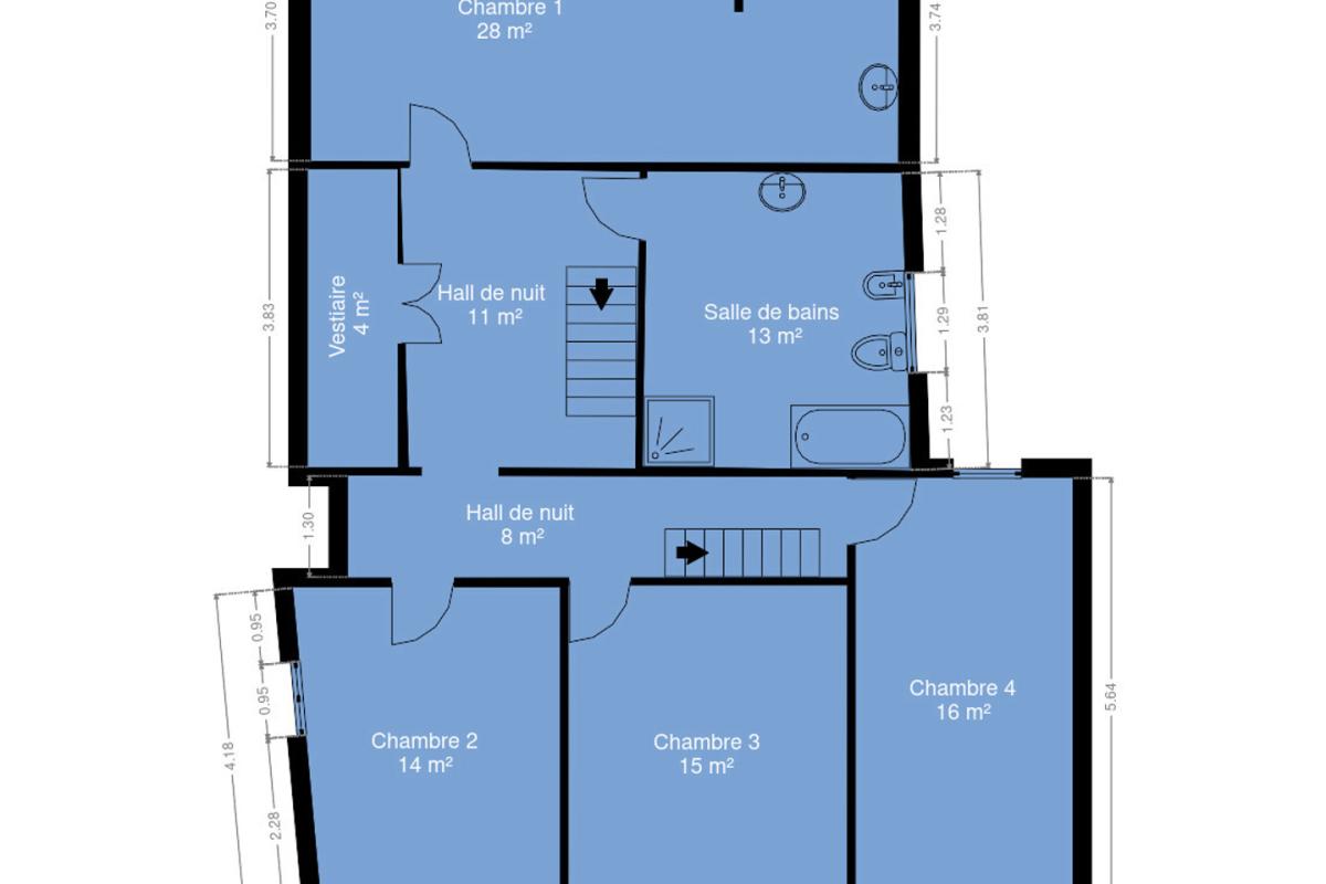
- Chambre 1 : 28 m²
- Chambre 2 : 16 m²
- Chambre 3 : 15 m²
- Chambre 4 : 14 m²
- Vestiaire : Oui
- Escalier nombre : 1
- Ascenseur : Oui
- Surface nette : 261 m²
- Double vitrage : Oui
- Largeur de façade : 11
- Profondeur terrain : 48
- égouts : Oui
- Téléphone : Oui
- électricité : Oui
- Salle de séjour : 72 m²
- Cuisine : 17 m²
- Dressing : 15 m²
- Salle de bain 1 : 13 m²
- Caves : 12 m²
- Grenier : 19
- Chauffage : mazout (chauf. centr.)
- Type d'ascenseur : personnes
- Type de revêtement de sol : carrelages
- Type de cuisine : super-équipée
- Télévision par cable : Oui
- Gaz : Oui
- Câbles téléphoniques : Oui
- Eau : Oui
- Grenier : Oui
- Cave : Oui
- Hall de nuit : Oui
- Hall de nuit : 12 m²
- Façade avant : Peinte
- Frigo : Oui
- Four : Oui
- Hotte : Oui
- Largeur terrain : 11
- Nbre de pièce(s) : 17
Extérieur
- Nombre d'étages : 4
- Châssis : bois
- Panneaux solaires : Nombre de panneaux 20, type de panneaux photovoltaique
- Parking extérieur : 4 place(s)
- Nombre de parking : 4
Terrain et environs
- Transports en commun : 100 m
- Type d'environnement : zone d'habitation
- Exposition de la façade avant : nord
- Magasins : Oui
- Transports en commun : Oui
- Centre sportif : Oui
- Autoroute : 600 m
- Gare : Oui
- Risque d'inondation : pas situé en zone inondable
Certificats / Attestations
- Capacité de la citerne à mazout : 3000
- Certificat d'électricité : oui, non conforme
Certificats énergétiques
- Label PEB : C
- PEB E-SPEC (kwh/m²/an) : 201
- Emission CO2 : 50
- E total : 59497 kWh/an
- PEB code unique : 20250219025771
- PEB valide jusqu'au : 02/19/2035 00:00
- Date du PEB : 02/19/2025 00:00
Contact
Ce bien vous intéresse ? Contactez-nous via notre formulaire ou par téléphone.
Retour au listingCe site utilise des cookies
Nous utilisons des cookies pour assurer le bon fonctionnement du site. Vous pouvez consulter nos mentions légales et notre politique de confidentialité pour plus d'informations.






























