Description
A 5 Min de Baisy-thy, en zone d'intérêt paysager, nous vous proposons en exclusivité cette magnifique villa 4 façades presque passive (reste les panneaux photovoltaïques à placer si souhaité) avec carport attenant érigée sur un terrain de 23,55 ares. Le bien donne sur un champ de coquelicot et une lisière de bois. La maison est totalement prête à vivre hormis la cuisine à installer, tout est fonctionnel, on peut y poser ses valises. PEB A. Le bien se trouve sous régime TVA 21%, quotte part terrain 100 000 €. Frais de raccordement et d'acte urbanistique à rajouter au dessus du prix toujours à charge de l'acheteur. Citerne d'eau de pluie de 7500l. Opportunité rare à saisir.
Général
- Type de bien : Maison
- Condition : Neuf
- Disponibilité : à l'acte
- Jardin :
- Façade(s) : 4
- Étage : 1
Aspects financiers
- Sous régime TVA : Oui
- Permis de bâtir : Oui
- Affectation urbanistique : zone d'habitat
Intérieur
- Largeur front de rue : 50
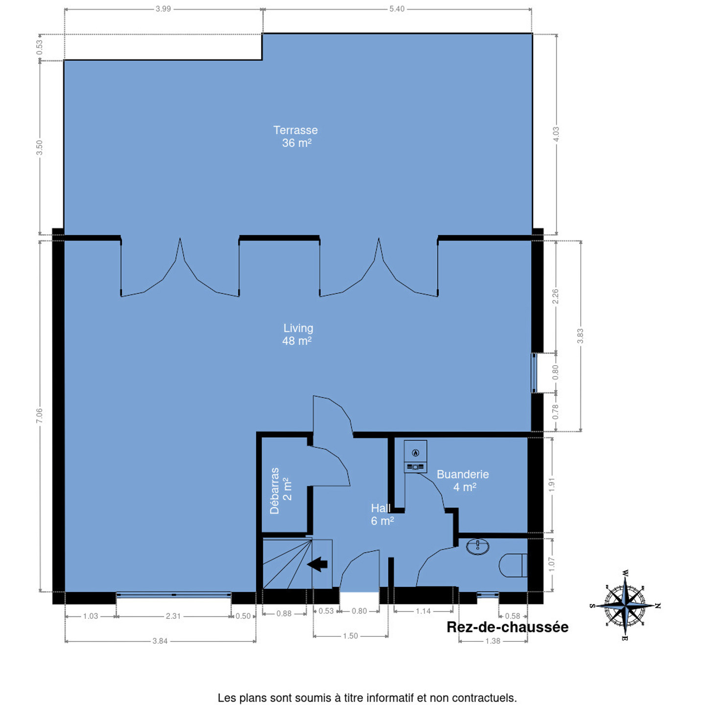
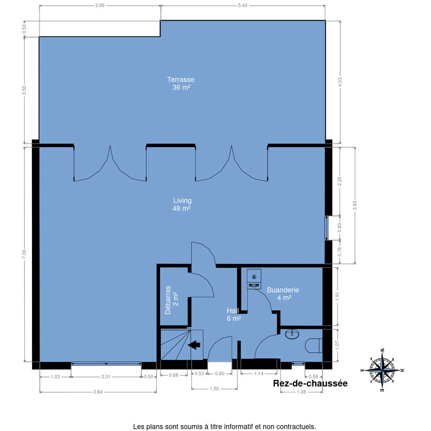
- Surface bâtie : 145 m²
- Buanderie : 4.43 m²
- Chauffage (ind/coll) : individuel
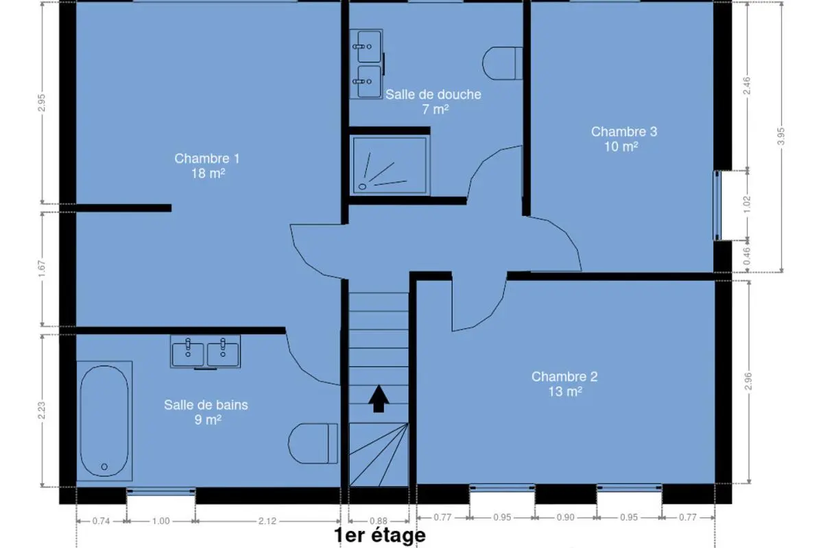
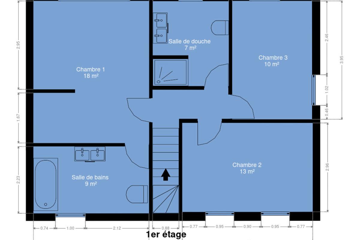
- Nbre de toilette(s) : 3
- Nombre de sdd : 1
- Chambre 1 : 18.09 m²
- Chambre 2 : 12.88 m²
- Chambre 3 : 10.48 m²
- Escalier nombre : 1
- Ascenseur : Non
- Surface nette : 125 m²
- Double vitrage : Oui
- Largeur de façade : 11
- Profondeur terrain : 90
- égouts : Oui
- électricité : Oui
- Nbre de terrasse(s) : 1
- Salle de bain 1 : 8.57 m²
- Chauffage : pompe à chaleur
- Chambre 1 (revêtement de sol) : carrelages
- Type de revêtement de sol : carrelages
- Type de cuisine : non-équipée
- Sdb : bain
- Télévision par cable : Oui
- Eau : Oui
- Sdb 2 : douche
- Façade avant : Brique
- Largeur terrain : 50
- Nbre de pièce(s) : 10
Extérieur
- Année de construction : 2025
- Nombre d'étages : 1
- Carport : Oui
- Châssis : pvc
- Surface de terrasse 1 : 35 m²
- Jardin : ouest, plat, À aménager
- Nombre de parking : 4
- Maison passive : Oui
Terrain et environs
- Transports en commun : 100 m
- Type d'environnement : zone d'habitation
- Exposition de la façade avant : est
- Transports en commun : Oui
- Autoroute : 7400 m
- Gare : 11000 m
- Risque d'inondation : zone innondable effective
Certificats / Attestations
- Certificat d'électricité : oui, conforme
Energie
- Label PEB : A
- PEB E-SPEC (kwh/m²/an) : 59
- Emission CO2 : 14
- E total : 9547 kWh/an
- PEB code unique : RWPEB-098986
- PEB valide jusqu'au : 04/18/2035 00:00
- Date du PEB : 04/18/2025 00:00
Contact
Ce bien vous intéresse ? Contactez-nous via notre formulaire ou par téléphone.
Retour au listingCe site utilise des cookies
Nous utilisons des cookies pour assurer le bon fonctionnement du site. Vous pouvez consulter nos mentions légales et notre politique de confidentialité pour plus d'informations.



















