Description
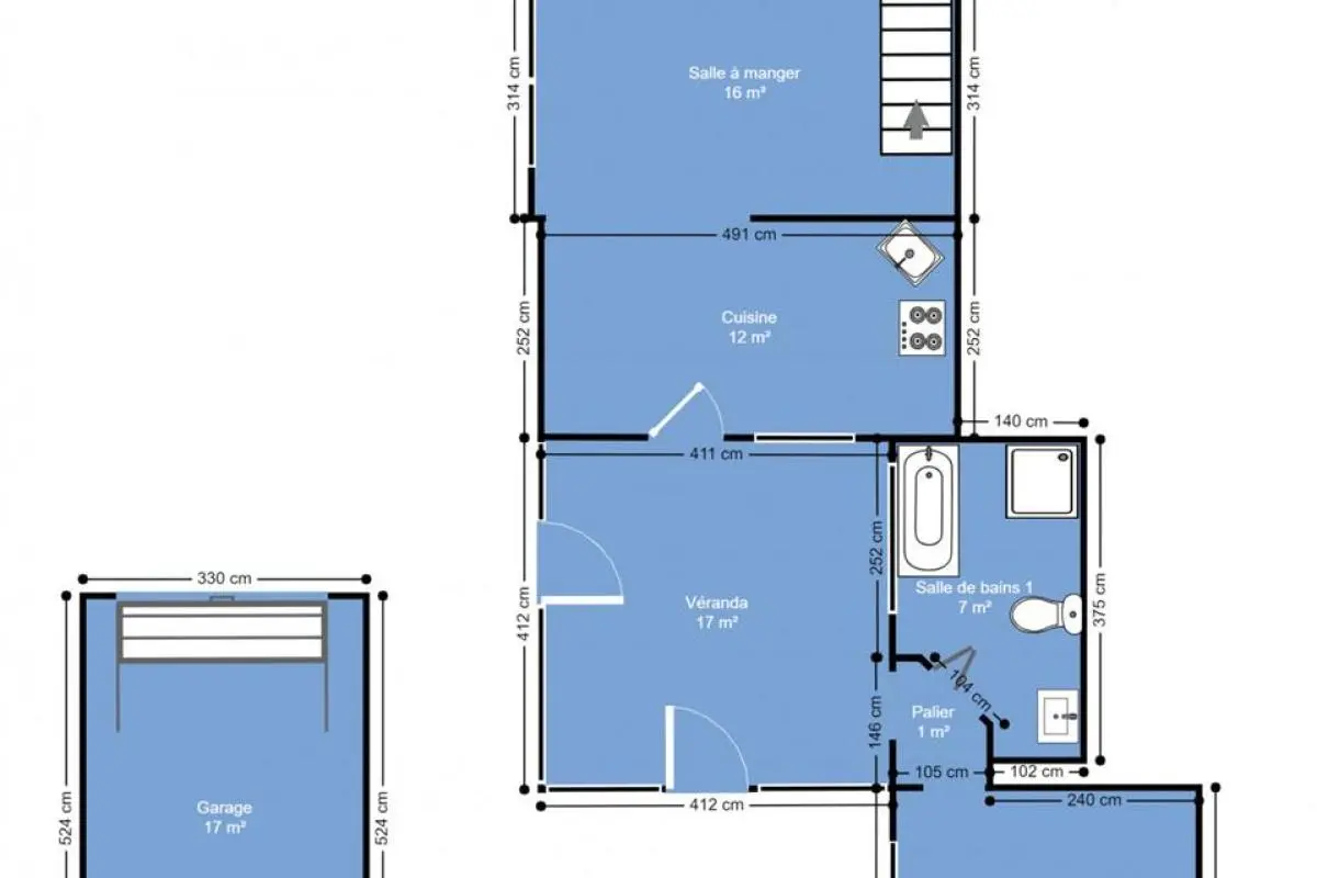
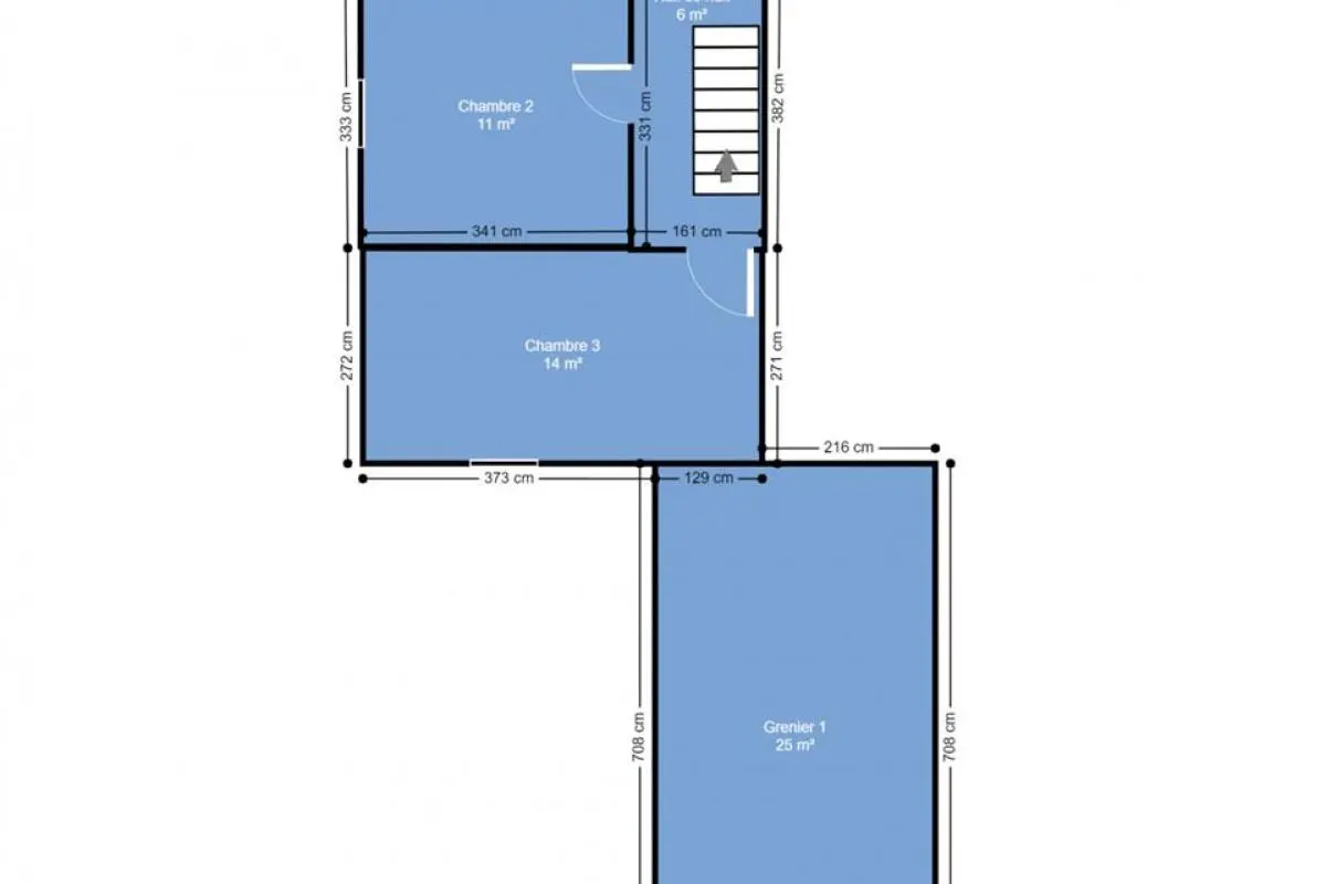
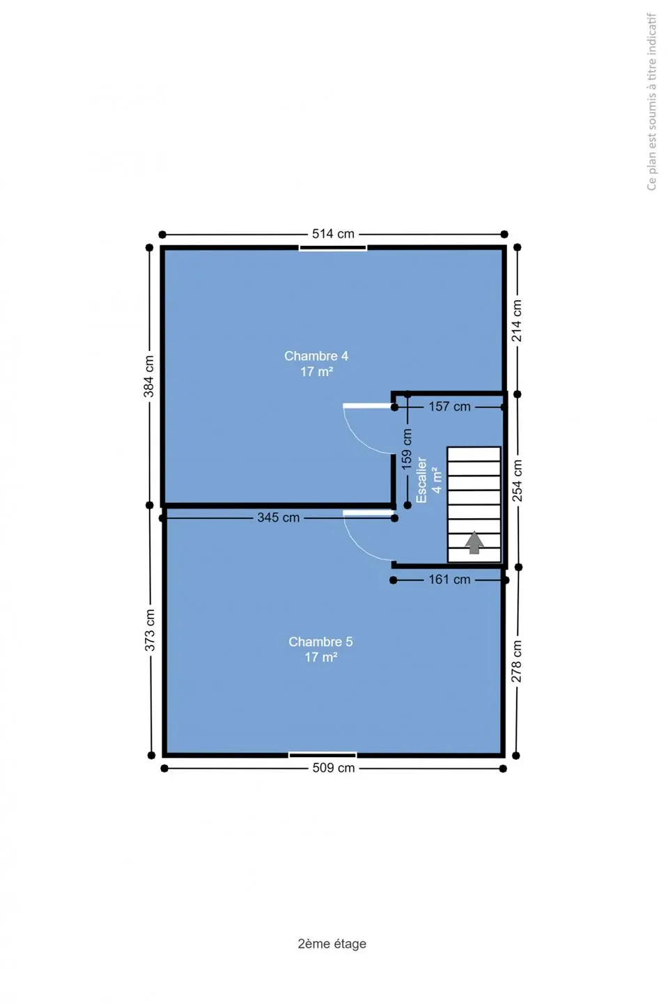
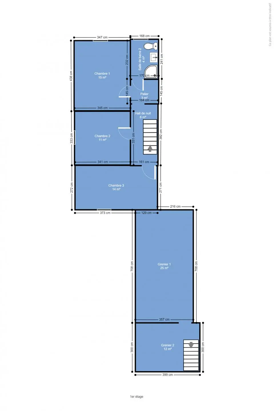
Laissez-vous charmer par cette agréable maison avec jardin et parking idéalement située au cœur du village d’Ittre. Le calme de sa situation ne pourra que vous séduire. Elle se compose comme suit : au-rez-de-chaussée : un salon, une salle-à-manger, une cuisine équipée, une véranda avec air-conditionnée, une salle de bains avec bain, douche et WC, une buanderie et une remise avec mezzanine. Au 1er étage : un hall de nuit desservant 3 chambres et une salle de bain avec douche et WC. Au dernier étage : deux chambres. Petite cave. Spacieuse double terrasse bien orientée avec vue sur le jardin. Pour compléter la visite, vous profiterez d’un grand garage de 40m² ainsi que de 4 emplacements de parking privatifs. Citerne d’eau de pluie de 9000L. Sa situation attrayante ne vous laissera pas indifférent. Possibilité d’obtenir les droits d’enregistrements réduits. Opportunité à ne pas rater !
Général
- Type de bien : Maison
- Condition : Bon état
- Disponibilité : à l'acte
- Jardin :
- Façade(s) : 3
Aspects financiers
- Revenu cadastral (€) : 695 €
Intérieur
- Buanderie : 11 m²
- Nbre de toilette(s) : 2
- Véranda : Oui
- Bureau : Oui
- Chambre 1 : 18 m²
- Chambre 2 : 17 m²
- Chambre 3 : 15 m²
- Chambre 4 : 14 m²
- Chambre 5 : 12 m²
- Ascenseur : Non
- Double vitrage : Oui
- égouts : Oui
- électricité : Oui
- Nbre de terrasse(s) : 2
- Salle de séjour : 22.5 m²
- Salle à manger : 16 m²
- Cuisine : 13 m²
- Chauffage : gaz (chau. centr.)
- Type de cuisine : équipée
- Alarme : Oui
- Télévision par cable : Oui
- Gaz : Oui
- Câbles téléphoniques : Oui
- Eau : Oui
- Grenier : 37m²
- Cave : Oui
Extérieur
- Nombre d'étages : 2
- Nombre de garage : 1
- Air conditionné : Oui
- Châssis : pvc
- Surface de terrasse 1 : 35 m²
- Citerne d'eau : Oui
- Citerne d'eau - capacité : 9000
- Nombre de parking : 4
Terrain et environs
- Orientation du bâtiment : est
- Magasins : 70 m
- écoles : 2300 m
- Transports en commun : 300 m
- Type d'environnement : calme
- Exposition de la façade avant : ouest
- Magasins : Oui
- Ecoles : Oui
- Transports en commun : Oui
- Centre sportif : Oui
- Autoroute : 7000 m
- Gare : 8600 m
- Orientation de la terrasse : sud
- Risque d'inondation : pas situé en zone inondable
Certificats énergétiques
- Label PEB : D
- PEB E-SPEC (kwh/m²/an) : 264
- Emission CO2 : 49
- E total : 57956 kWh/an
- PEB code unique : 20190828024573
- PEB valide jusqu'au : 08/28/2029 00:00
- Date du PEB : 08/28/2019 00:00
Contact
Ce bien vous intéresse ? Contactez-nous via notre formulaire ou par téléphone.
Retour au listingCe site utilise des cookies
Nous utilisons des cookies pour assurer le bon fonctionnement du site. Vous pouvez consulter nos mentions légales et notre politique de confidentialité pour plus d'informations.


























