Description
✨ À découvrir en exclusivité ! ✨ Proche du centre de Seneffe, dans un environnement paisible, nous vous proposons cette élégante maison de maître au charme intemporel. Avec ses 439 m² habitables, elle offre de beaux volumes répartis entre : de vastes caves, un rez-de-chaussée lumineux donnant accès au jardin, une annexe pleine de caractère (non attenante), un étage spacieux, et un grenier aménagé en véritable suite parentale, comprenant notamment un espace cinéma pour vos soirées cosy.
Général
- Type de bien : Maison
- Condition : À rafraîchir
- Disponibilité : à l'acte
- Jardin :
- Façade(s) : 2
- Étage : 1
Aspects financiers
- Revenu cad. indexé : 1215 €
- Permis de bâtir : Oui
Intérieur
- Largeur front de rue : 12
- Surface bâtie : 207 m²
- Salle à manger : Oui
- Cuisine : Oui
- Buanderie : 13.74 m²
- Nbre de grenier(s) : 2
- Chauffage (ind/coll) : individuel
- Nbre de toilette(s) : 3
- Nombre de sdd : 2
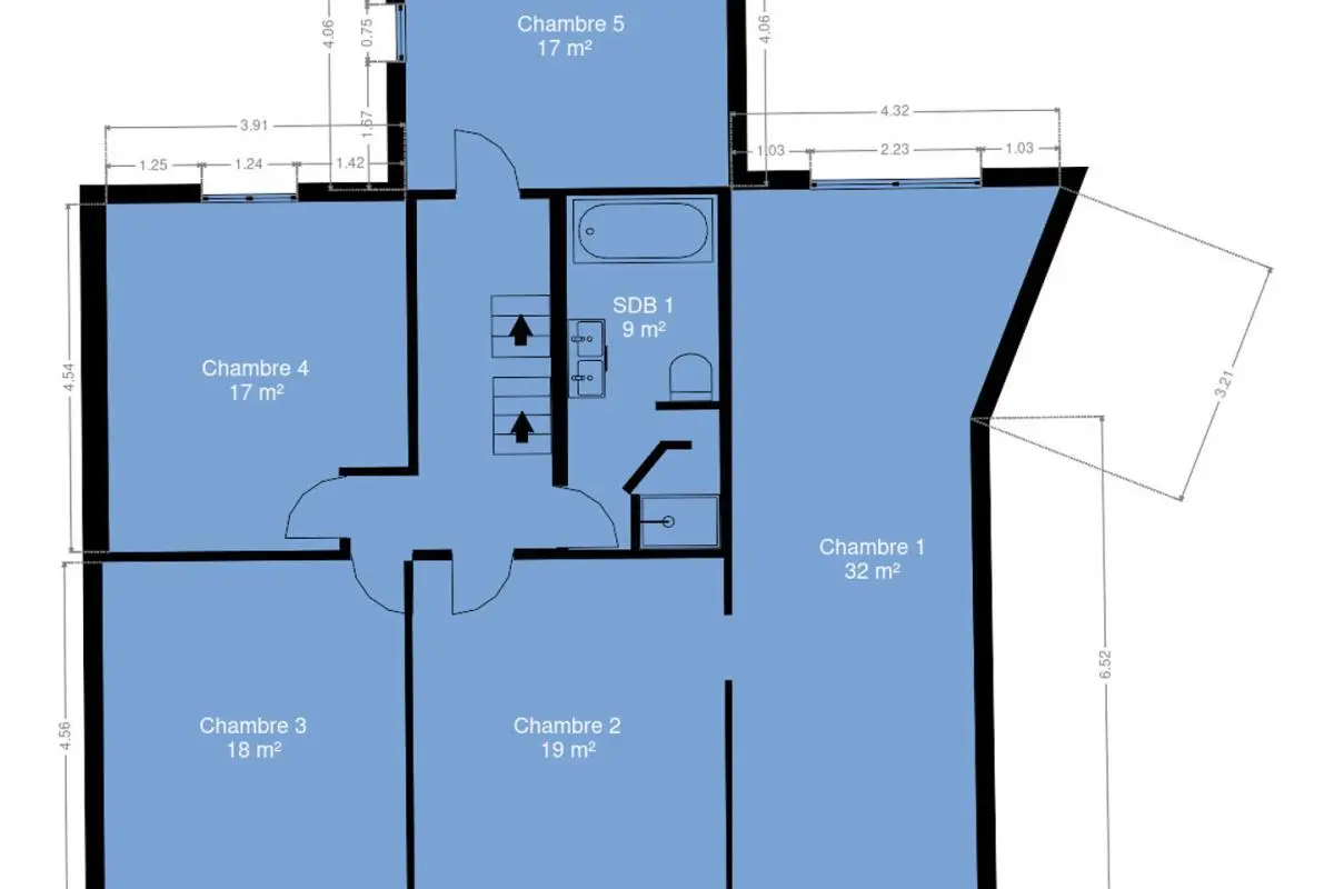
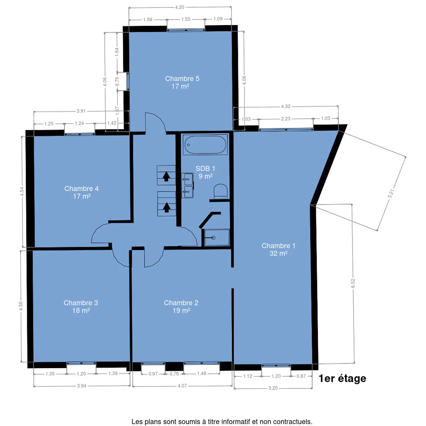
- Chambre 1 : 31.67 m²
- Chambre 2 : 18.64 m²
- Chambre 3 : 17.96 m²
- Chambre 4 : 16.79 m²
- Chambre 5 : 17.03 m²
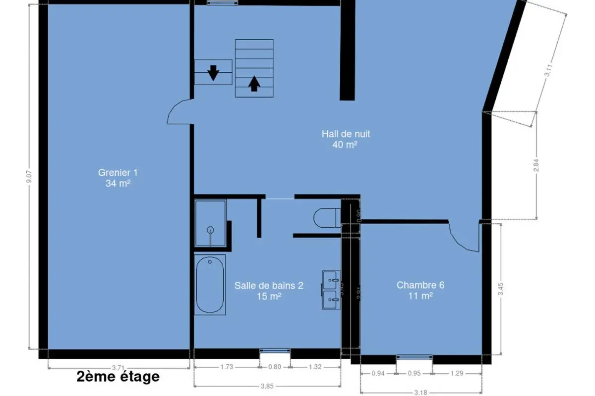
- Chambre 6 : 10.97 m²
- Ascenseur : Non
- Hall d'entrée : Oui
- Surface nette : 319 m²
- Double vitrage : Oui
- Largeur de façade : 12
- Profondeur terrain : 31
- égouts : Oui
- électricité : Oui
- Nbre de terrasse(s) : 1
- Salle à manger : 30.83 m²
- Cuisine : 18.77 m²
- Caves : 38.75 m²
- Grenier : 33.68
- Chauffage : mazout (chauf. centr.)
- Type de revêtement de sol : carrelages
- Type de cuisine : semi-équipée
- Sdb : bain
- Eau : Oui
- Grenier : Prise(s) électrique(s): 2
- Cave : Oui
- Salle de bains 2 : 8.93 m²
- Sdb 2 : bain
- Hall de nuit : Oui
- Hall de nuit : 40.45 m²
- Façade avant : Brique
- Frigo : Oui
- Four : Oui
- Hotte : Oui
- Largeur terrain : 12
Extérieur
- Année de construction : 1875
- Nombre d'étages : 2
- Annexe : Oui
- Année de rénovation : 2004
- Châssis : bois
- Surface (m²) de annexe : 22.59 m²
- Profondeur de garage : 5.82
- Largeur de garage : 3
- Jardin : ouest, plat, Fermé, à aménager
- Dépendances : Oui
Terrain et environs
- Transports en commun : 1200 m
- Type d'environnement : zone d'habitation
- Exposition de la façade avant : est
- Transports en commun : Oui
- Autoroute : 1800 m
- Gare : 8800 m
- Orientation du jardin : ouest
- Risque d'inondation : pas situé en zone inondable
Certificats / Attestations
- Certificat d'électricité : oui, conforme
Energie
- Label PEB : E
- PEB E-SPEC (kwh/m²/an) : 369
- E total : 111258 kWh/an
- PEB code unique : 20240421008138
- PEB valide jusqu'au : 04/21/2034 00:00
- Date du PEB : 04/21/2024 00:00
Contact
Ce bien vous intéresse ? Contactez-nous via notre formulaire ou par téléphone.
Retour au listingCe site utilise des cookies
Nous utilisons des cookies pour assurer le bon fonctionnement du site. Vous pouvez consulter nos mentions légales et notre politique de confidentialité pour plus d'informations.
































