Description
Opportunité rare ! Bel appartement offrant trois chambres, un garage et une cave, idéalement situé à proximité immédiate des commerces et de la gare. Ce bien fonctionnel et lumineux se compose d’un séjour agréable, d’une cuisine indépendante, de trois chambres confortables et d’une salle de bains. Il bénéficie également d'une cave privative. Le garage est en supplément du prix affiché. Actuellement loué, cet appartement représente un excellent investissement locatif avec un rendement stable. Rare sur le secteur, à visiter sans tarder !
Général
- Type de bien : Appartement
- Condition : Bon état
- Disponibilité : en fonct. du locataire
- Jardin :
- Façade(s) : 4
Aspects financiers
- Loué : Oui
- Revenu cadastral (€) : 1361 €
Intérieur
- Accès handicapés : Oui
- Cuisine : Oui
- Nbre de cave(s) : 1
- Nbre de toilette(s) : 2
- Chambre 1 : 14 m²
- Chambre 2 : 12 m²
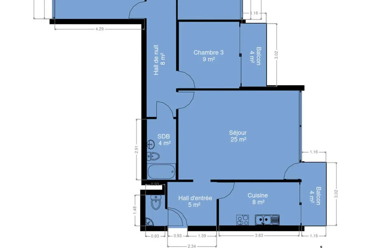
- Chambre 3 : 9 m²
- Ascenseur : Oui
- Double vitrage : Oui
- égouts : Oui
- électricité : Oui
- Salle de séjour : 25 m²
- Cuisine : 8 m²
- Salle de bain 1 : 4 m²
- Chauffage : gaz
- Type de cuisine : équipée
- Gaz : Oui
- Parlophone : Oui
- Câbles téléphoniques : Oui
- Eau : Oui
- Cave : Oui
- Hall de nuit : 8 m²
Extérieur
- Nombre d'étages : 10
- Nombre de garage : 1
- Châssis : pvc
Terrain et environs
- Transports en commun : 150 m
- Type d'environnement : zone d'habitation
- Exposition de la façade avant : sud-ouest
- Magasins : Oui
- Ecoles : Oui
- Transports en commun : Oui
- Centre sportif : Oui
- Autoroute : Oui
- Gare : 900 m
- Risque d'inondation : pas situé en zone inondable
Certificats énergétiques
- Label PEB : C
- PEB E-SPEC (kwh/m²/an) : 176
- Emission CO2 : 33
- E total : 17286 kWh/an
- PEB code unique : 20251031018978
- PEB valide jusqu'au : 10/31/2035 00:00
- Date du PEB : 10/31/2025 00:00
Contact
Ce bien vous intéresse ? Contactez-nous via notre formulaire ou par téléphone.
Retour au listingCe site utilise des cookies
Nous utilisons des cookies pour assurer le bon fonctionnement du site. Vous pouvez consulter nos mentions légales et notre politique de confidentialité pour plus d'informations.












