Description
Superbe villa de charme entièrement rénovée, nichée à l’écart de la rue et accessible par un chemin privatif équipé d’un portail électrique. Implantée sur un magnifique jardin arboré de 30 ares, elle offre une vue exceptionnelle et dégagée sur les champs, garantissant un cadre de vie paisible et verdoyant. La maison dispose de trois chambres lumineuses, de trois salles d’eau modernes ainsi que de beaux espaces de vie alliant confort et authenticité. Vous bénéficierez également d’un grand parking, d’un garage et de caves, idéals pour répondre à tous vos besoins de rangement et de praticité. Un bien rare qui conjugue charme, tranquillité et fonctionnalité.
Général
- Type de bien : Maison
- Condition : Bon état
- Disponibilité : à l'acte
- Jardin :
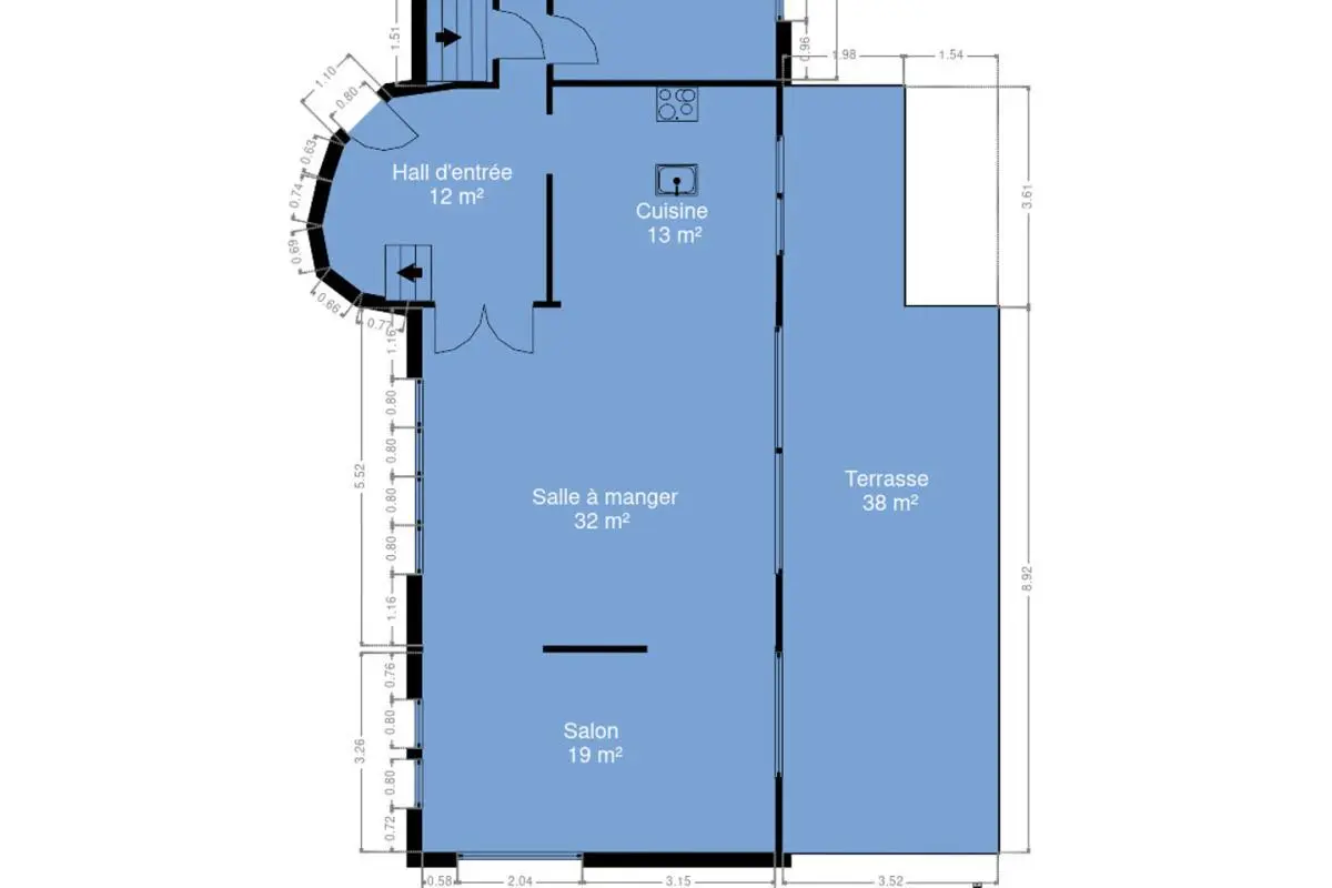
- Jardin : 2852 m²
- Façade(s) : 4
- Étage : 1
Aspects financiers
- Revenu cadastral (€) : 2731 €
Intérieur
- Accès handicapés : Oui
- Largeur front de rue : 26
- Surface bâtie : 153 m²
- Salle à manger : Oui
- Cuisine : Oui
- Buanderie : 17 m²
- Nbre de cave(s) : 2
- Nbre de toilette(s) : 2
- Lave-vaisselle : Oui
- Chambre 1 : 33 m²
- Chambre 2 : 20 m²
- Chambre 3 : 15 m²
- Escalier nombre : 2
- Ascenseur : Non
- Hall d'entrée : Oui
- Surface nette : 225 m²
- Double vitrage : Oui
- Largeur de façade : 20
- Profondeur terrain : 112
- égouts : Oui
- électricité : Oui
- Nbre de terrasse(s) : 1
- Salle à manger : 32 m²
- Cuisine : 13 m²
- Chauffage : gaz (chau. centr.)
- Marque de lave-vaisselle : de la marque AEG
- Type de revêtement de sol : carrelages
- Type de cuisine : amer. super-équipée
- Télévision par cable : Oui
- Câbles téléphoniques : Oui
- Eau : Oui
- Cave : Oui
- Hall de nuit : Oui
- Hall de nuit : 11 m²
- Façade avant : Brique
- Frigo : Oui
- Four : Oui
- Hotte : Oui
- Largeur terrain : 26
- Nbre de pièce(s) : 16
- Citerne de gaz : Oui
Extérieur
- Année de construction : 1965
- Nombre d'étages : 3
- Nombre de garage : 1
- Air conditionné : Oui
- Châssis : pvc
- Surface de terrasse 1 : 38 m²
- Profondeur de garage : 5.63
- Largeur de garage : 4.15
- Jardin : plat, Aménagé pelouse
- Parking extérieur : 6 place(s)
- Clôture : Oui
- Nombre de parking : 6
Terrain et environs
- Orientation du bâtiment : sud
- Type d'environnement : calme
- Exposition de la façade avant : nord
- Magasins : Oui
- Ecoles : Oui
- Transports en commun : Oui
- Centre sportif : Oui
- Autoroute : Oui
- Gare : Oui
- Orientation de la terrasse : sud
- Orientation du jardin : sud
- Risque d'inondation : pas situé en zone inondable
Certificats / Attestations
- Certificat d'électricité : oui, conforme
Energie
- Label PEB : C
- PEB E-SPEC (kwh/m²/an) : 216
- Emission CO2 : 40
- E total : 48716 kWh/an
- PEB code unique : 20250417007785
- PEB valide jusqu'au : 04/17/2035 00:00
- Date du PEB : 04/17/2025 00:00
Contact
Ce bien vous intéresse ? Contactez-nous via notre formulaire ou par téléphone.
Retour au listingCe site utilise des cookies
Nous utilisons des cookies pour assurer le bon fonctionnement du site. Vous pouvez consulter nos mentions légales et notre politique de confidentialité pour plus d'informations.




























