À vendre
Appartement - 1400 Nivelles
faire offre à partir de 160.000 €
Référence : 7594396
Description
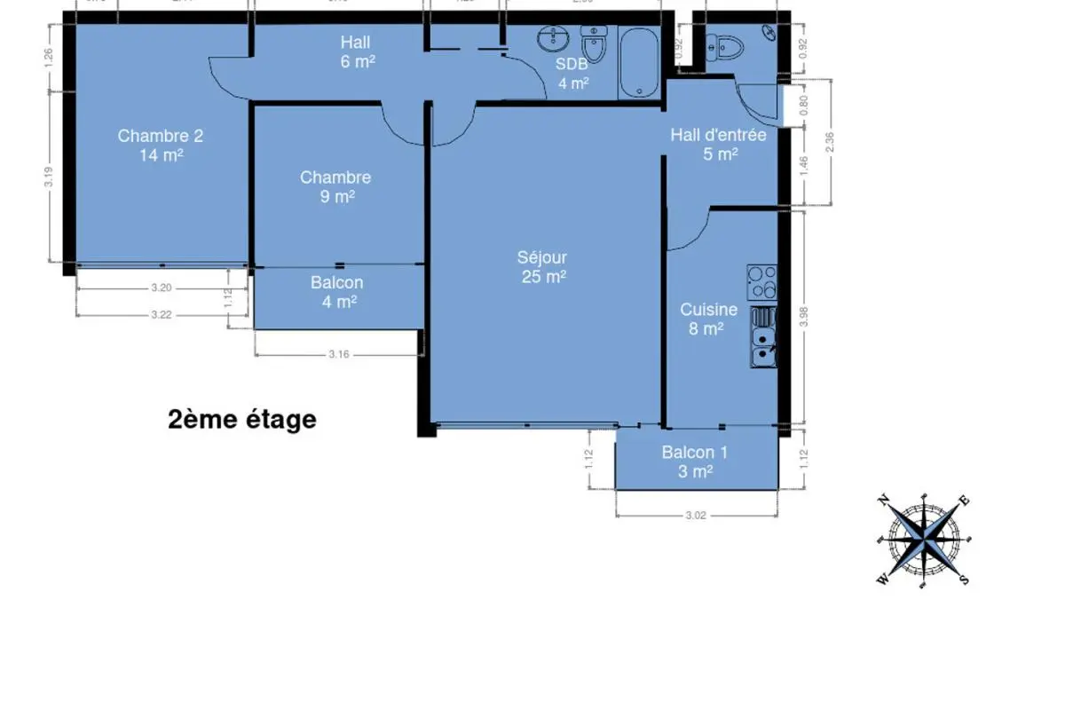
À vendre : bel appartement idéalement situé, proche de toutes les commodités (transports, commerces, écoles). Il se compose de deux chambres spacieuses, d’un salon lumineux, d’une cuisine équipée, d’une salle de bain et de deux WC. Vous profiterez également de deux balcons, idéals pour savourer les beaux jours ainsi qu'une cave privative. Cet appartement allie confort, praticité et emplacement recherché. Contactez-nous dès aujourd’hui pour organiser une visite !
Général
- Type de bien : Appartement
- Condition : Bon état
- Disponibilité : en fonct. du locataire
- Jardin :
- Façade(s) : 3
Intérieur
- Accès handicapés : Oui
- Cuisine : Oui
- Nbre de cave(s) : 1
- Chauffage (ind/coll) : collectif
- Nbre de toilette(s) : 2
- Chambre 1 : 14 m²
- Chambre 2 : 10 m²
- Ascenseur : Oui
- égouts : Oui
- électricité : Oui
- Salle de séjour : 26 m²
- Cuisine : 8 m²
- Salle de bain 1 : 4 m²
- Câbles téléphoniques : Oui
- Eau : Oui
- Cave : Oui
Extérieur
- Châssis : aluminium
- Balcon : Oui
Terrain et environs
- Type d'environnement : zone d'habitation
- Exposition de la façade avant : nord-est
- Magasins : Oui
- Ecoles : Oui
- Transports en commun : Oui
- Centre sportif : Oui
- Autoroute : Oui
- Gare : Oui
Certificats / Attestations
- Certificat d'électricité : oui, conforme
Certificats énergétiques
- Label PEB : E
- PEB E-SPEC (kwh/m²/an) : 384
Contact
Ce bien vous intéresse ? Contactez-nous via notre formulaire ou par téléphone.
Retour au listingCe site utilise des cookies
Nous utilisons des cookies pour assurer le bon fonctionnement du site. Vous pouvez consulter nos mentions légales et notre politique de confidentialité pour plus d'informations.
Accepter les cookies
Paramétrer les cookies














