Description
Située dans un environnement particulièrement calme et agréable, tout en restant à proximité immédiate des facilités (commerces, écoles, transports et axes principaux), cette spacieuse villa 4 façades séduira les amateurs de grands espaces et de confort. La maison se compose de 5 belles chambres ainsi que d’un bureau, idéal pour le télétravail ou l’exercice d’une profession libérale. Elle dispose également de deux salles de bains, permettant une organisation pratique et confortable pour toute la famille. Les volumes généreux de l’habitation offrent de nombreuses possibilités d’aménagement et de personnalisation selon vos besoins et vos projets. Son énorme potentiel en fait une opportunité rare sur le marché. À l’extérieur, vous bénéficierez d’un grand parking privatif pouvant accueillir plusieurs véhicules ainsi que de deux garages, un véritable atout en termes de praticité et de stockage. La villa est équipée de 24 panneaux photovoltaïques, garantissant une meilleure performance énergétique et une réduction significative des coûts liés à la consommation. Un bien idéal pour une grande famille ou pour toute personne recherchant une propriété spacieuse dans un cadre paisible. Informations et visites sur demande.
Général
- Type de bien : Villa
- Condition : Bon état
- Disponibilité : en fonct. du locataire
- Jardin :
- Façade(s) : 4
- Étage : 1
Aspects financiers
- Permis de bâtir : Oui
- Loué : Oui
- Revenu cadastral (€) : 3034 €
Intérieur
- Cuisine : Oui
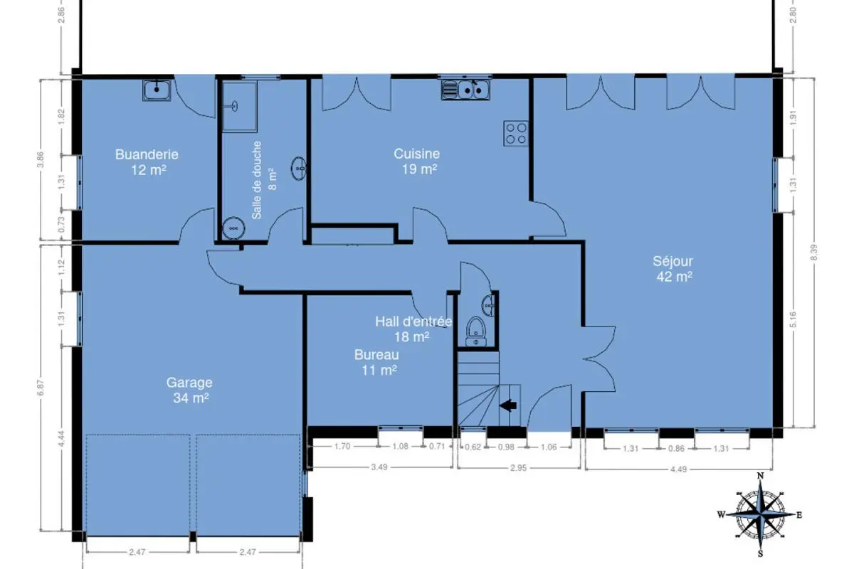
- Buanderie : 12 m²
- Nbre de toilette(s) : 2
- Bureau : Oui
- Chambre 1 : 34 m²
- Chambre 2 : 23 m²
- Chambre 3 : 22 m²
- Chambre 4 : 19 m²
- Chambre 5 : 11 m²
- Chambre 6 : 10 m²
- Ascenseur : Non
- Double vitrage : Oui
- égouts : Oui
- Téléphone : Oui
- électricité : Oui
- Salle de séjour : 42 m²
- Cuisine : 19 m²
- Chauffage : accumulateurs électriques
- Type de cuisine : équipée
- Télévision par cable : Oui
- Câbles téléphoniques : Oui
- Eau : Oui
- Grenier : Oui
- Télévision : Oui
- Feu ouvert : Oui
Extérieur
- Année de construction : 1999
- Nombre d'étages : 1
- Nombre de garage : 2
- Isolation : Oui
- Châssis : pvc
- Surface de terrasse 1 : 47 m²
- Panneaux solaires : 24
- Clôture : Oui
- Nombre de parking : 8
Terrain et environs
- Type d'environnement : calme
- Magasins : Oui
- Ecoles : Oui
- Transports en commun : Oui
- Centre sportif : Oui
- Autoroute : Oui
- Gare : Oui
- Risque d'inondation : pas situé en zone inondable
Certificats énergétiques
- Label PEB : D
- PEB E-SPEC (kwh/m²/an) : 262
- Emission CO2 : 68
- E total : 92463 kWh/an
- PEB valide jusqu'au : 06/23/2035 00:00
- Date du PEB : 06/23/2025 00:00
Contact
Ce bien vous intéresse ? Contactez-nous via notre formulaire ou par téléphone.
Retour au listingCe site utilise des cookies
Nous utilisons des cookies pour assurer le bon fonctionnement du site. Vous pouvez consulter nos mentions légales et notre politique de confidentialité pour plus d'informations.




















