Description
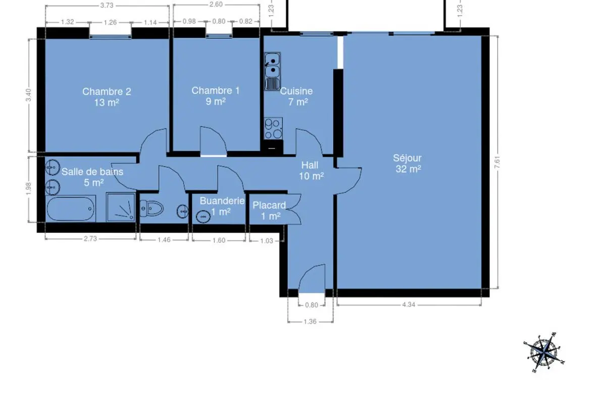
Situé dans une résidence de standing à proximité immédiate de toutes les facilités, cet appartement en parfait état vous séduira par sa luminosité et son agencement fonctionnel. Il se compose d’un agréable hall d’entrée avec placard intégré, d’un lumineux séjour donnant accès à une belle terrasse ensoleillée équipée d’une tente solaire et offrant une vue dégagée, idéale pour profiter des beaux jours. L’appartement dispose de deux chambres confortables ainsi que d’une salle de bain comprenant à la fois une baignoire et une douche. Une buanderie privative complète les espaces pratiques du bien. Côté annexes, vous bénéficierez d’un garage fermé, d’un emplacement de parking extérieur privatif ainsi que d’une cave. Appartement très bien entretenu, prêt à emménager, idéalement situé. N'attendez plus et contactez-nous pour une visite !
Général
- Type de bien : Appartement
- Condition : Bon état
- Disponibilité : à l'acte
- Jardin :
- Façade(s) : 2
- Étage : 1
Aspects financiers
- Loué : Oui
Intérieur
- Accès handicapés : Oui
- Cuisine : Oui
- Buanderie : 1.45 m²
- Nbre de cave(s) : 1
- Chauffage (ind/coll) : individuel
- Nbre de toilette(s) : 1
- Lave-vaisselle : Oui
- Chambre 1 : 13 m²
- Chambre 2 : 10 m²
- Ascenseur : Oui
- Surface nette : 83 m²
- Double vitrage : Oui
- Largeur de façade : 14
- égouts : Oui
- électricité : Oui
- Salle de séjour : 33 m²
- Cuisine : 7 m²
- Salle de bain 1 : 6 m²
- Caves : 2.95 m²
- Chauffage : accumulateurs électriques
- Marque de lave-vaisselle : de la marque BOSCH
- Type d'ascenseur : personnes
- Type de revêtement de sol : carrelages
- Type de cuisine : équipée
- Parlophone : Oui
- Câbles téléphoniques : Oui
- Videophone : Oui
- Eau : Oui
- Cave : Oui
- Détecteur incendie : Oui
- Façade avant : Brique
- Frigo : Oui
- Four : Oui
- Hotte : Oui
- Nbre de pièce(s) : 9
Extérieur
- Année de construction : 1991
- Nombre d'étages : 8
- Nombre de garage : 1
- Châssis : bois
- Profondeur de garage : 5.45
- Largeur de garage : 2.86
- Jardin : Commun
- Nombre de parking : 1
Terrain et environs
- Type d'environnement : zone d'habitation
- Exposition de la façade avant : nord-est
- Magasins : Oui
- Ecoles : Oui
- Transports en commun : Oui
- Centre sportif : Oui
- Autoroute : Oui
- Gare : Oui
- Orientation de la terrasse : sud ouest
- Risque d'inondation : pas situé en zone inondable
Certificats énergétiques
- Label PEB : C
- PEB E-SPEC (kwh/m²/an) : 178
Visites
- Visite disponibilité : Plages horaires hebdomadaires
Contact
Ce bien vous intéresse ? Contactez-nous via notre formulaire ou par téléphone.
Retour au listingCe site utilise des cookies
Nous utilisons des cookies pour assurer le bon fonctionnement du site. Vous pouvez consulter nos mentions légales et notre politique de confidentialité pour plus d'informations.





















